
BEST PLACE Immobilien GmbH & Co. KG
Ihr Best Place Vertriebsteam
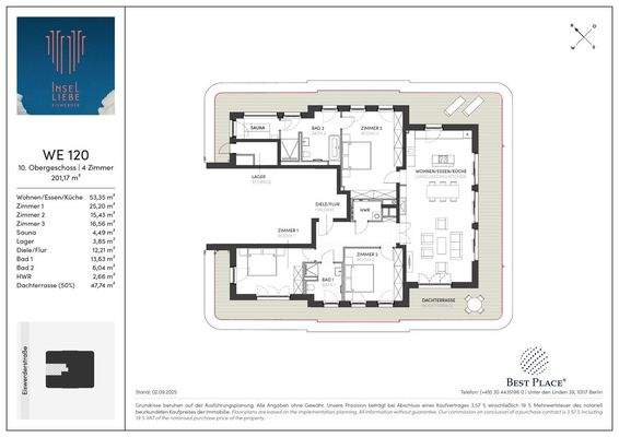
004 ···
Nr. anzeigenDieses Angebot ist Teil des Neubauprojekts
Inselliebe
Preise & Kosten
Provision für Käufer
3,57%
Lage
Inselliebe entsteht auf der sonnigen Südseite der Insel Eiswerder direkt neben dem Eiswerderpark. Wassersportler kommen hier auf Ihre Kosten: Ein SUP Center und mehrere Wassersportvereine sind auf der Insel aktiv. Supermärkte, Restaurants, Kitas und Schulen erreichen Sie in wenigen Minuten, ebenso wie den Krienicke Park mit...
Die Wohnung
Wohnungslage
10. Geschoss
Wohnanlage
Das Neubauprojekt
Energie & Heizung
Warum sehe ich diese Anzeige? – Du siehst diese Anzeige basierend auf Ihrer Navigation auf unserer Website und den Suchkriterien, die du verwendet hast.
Energieausweis: für diesen Gebäudetyp nicht notwendig
Weitere Energiedaten
Energieträger
Gas
Heizungsart
Fußbodenheizung
Details
Objektbeschreibung
High-End Living hoch über der Havel: Dieses großzügige Penthouse erstreckt sich über die
oberste Etage des Suntowers INSELLIEBE. Ein absolutes Unikat mit spektakulärer,
unverbaubarer Aussicht über die glitzernde Havel. Hier erwartet Sie ein repräsentatives
Domizil - lichtdurchflutet, elegant und...
Ausstattung
.Unverbaubarer 360 Grad-Panoramablick
.Penthouse über die komplette 10. Etage
.Umlaufende Dachterrasse (ca. 48 m²)
.Panorama-Sauna
.Deckenhöhe ca. 3,2 m
.Kamin
.Klimaanlage
.Badezimmer 1: Tageslicht, bodengleiche Dusche, Badewanne
.Badezimmer 2: Tageslicht, bodengleiche Dusche...
Weitere Informationen
Sonstiges
Wir laden Sie herzlich ein, jeden Samstag und Sonntag zwischen 11 und 14 Uhr unseren Showroom in der Eiswerderstraße 10B, 13585 Berlin zu besuchen. Lassen Sie sich in gemütlicher Atmosphäre beraten - wir freuen uns auf Sie!
Stichworte
Tiefgarage vorhanden, Gesamtfläche: 201,17 m², vermietbare Fläche...
Anbieter der Immobilie
Online-ID: 2myk95k
Referenznummer: INSEL-WE120
Finde Angebote wie dieses
Hier geht es zu unserem Impressum, den Allgemeinen Geschäftsbedingungen, den Hinweisen zum Datenschutz und nutzungsbasierter Online-Werbung.