Doppelhaushälfte in Bestlage Dachau, direkt an der Amper/ H3
Neubau von 4 modernen Doppelhaushälften, inkl. Garage oder Carport in sehr schöner Lage in Dachau, direkt an der Amper.
Grund gesamt 818 qm
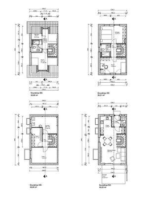
4 Zimmer/ KG + EG + OG + DG / 1 Garage je Haus
AuĂźenmaĂźe ca. 5,37 m x 9,5 m
Angaben oben fĂĽr Haus Nr. 3
Wohnfläche 101 qm + 39 qm Nutzfläche
Baugenehmigung wird eingereicht
Baubeginn Mitte 2026. Fertigstellung Ende 2027. (Bauzeit ca. 14 Monate ab Baubeginn)
Die Gestaltung der Grundrisse ist noch beeinflußbar und kann nach Ihren Wünschen geändert und umgeplant werden. Die Baufirma berät Sie dazu gerne bei einem persönlichen Besprechungstermin in ihrem Büro.
Merkmale
frei ab 30.11.2027
177 m² Grundstück
Keller
Garage
3 WCs, Gäste-WC
Terrasse
2 Badezimmer: Badewanne, Bad mit Dusche, Bad mit Fenster
- 4-5 Zimmer, 2 Bäder + Gäste WC
- Garage
- massive Bauweise
- Energieeffizienz A
- Hobbyraum
- inklusive aller Malerarbeiten
Heizung:
- Wärmepumpe
- FuĂźbodenheizung mit Einzelraumsteuerung
auch im Hobbyraum
- Handtuchheizkörper in den Bädern
Fenster:
- Fenster mit Dreifachverglasung
- Innenfensterbänke in Naturstein
- elektrische Rollläden
Treppen:
- wangenfreie Massivholztreppe
hochwertige Böden:
- Parkett in allen Wohnräumen nach Wahl
- Fliesen im Flur, in den Bädern und im
KG (auch im Hobbyraum, nach Wunsch
ist auch Parkett mögl.)
Badausstattung:
- hochwertige Porzellanserie und
Armaturen oder nach Wahl
- Exklusive Fliesen nach Wahl
Betreuung und Sicherheitsleistung:
- individuelle Betreuung und Beratung
- persönlicher Objektbauleiter vom ersten
Spatenstich bis zur Ăśbergabe und darĂĽber hinaus
- Umplanung und Gestaltung der Grundrisse nach
Ihren WĂĽnschen
- Blower- Door -Test
- Energieausweis
umfangreiches Sicherheitspaket:
- Feuerrohbauversicherung
- Baugewährleistungsversicherung
- VertragserfĂĽllungsbĂĽrgschaft gem. BGB
- baubegleitende Qualitätsprüfung und
Zertifizierung durch Experten der TĂśV od. Dekra
Realisiere Dein Projekt
Bausubstanz und Energie
Energieausweis
Ein Energieausweis ist für diesen Gebäudetyp nicht notwendig.
Baujahr2026
Zustand der ImmobilieErstbezug
HaustypKfW 55
HeizungsartFuĂźbodenheizung
EnergieträgerLuft-/Wasser-Wärmepumpe
Preisdetails
Kaufpreis
895000 €895.000 €
8.774,51 €/m²
Provision für Käufer
3,57% inkl. Mehrwertsteuer
Geschätzte Gesamtkosten
976.176 €1
Kaufpreis
895.000 €
Kaufnebenkosten
81.176 €
2
Notarkosten (1,5%)
13.425 €
Grunderwerbsteuer (3,5%)
31.325 €
Provision für Käufer (3,57%)
31.951 €
Grundbucheintrag (0,5%)
4.475 €
1Der angezeigte Wert ist eine automatisch berechnete Schätzung von immowelt.
2Bei den Angaben handelt es sich um ortsübliche Werte. Individuelle Kosten können abweichen.
Lage
Dachau (85221)
Der Anbieter hat die genaue Adresse nicht freigegeben
Das GrundstĂĽck befindet sich in ruhiger, begehrter Wohnlage in einer AnliegerstraĂźe, direkt an der Amper, dennoch sehr zentral.
Bushaltestelle zu FuĂź ca. 4 Min.
Kindergarten zu FuĂź ca. 7 Min
Bahnhof Dachau zu FuĂź ca. 9 Min.
Hauptbahnhof MVV ca. 30 Min.
Flughafen MVV ca. 54 Min.