

Kölblin Immobilien
Herr Martin Schöchlin
076 ···
Nr. anzeigenPreise & Kosten
Provision für Käufer
3,57
Lage
Das Objekt liegt im etablierten Gewerbegebiet "Wöllinger Weg" in Endingen am Kaiserstuhl, am westlichen Ortsrand.
Die Umgebung ist geprägt von einer vielfältigen Branchenstruktur - Technologie, Produktion, Dienstleistungen und Handel - und bietet ein dynamisches Netzwerk für Kooperationen und Wachstum.
Für Mitarbeiter...
Die Industriefläche
Kategorie
Lagerhalle
Bezug
nach Absprache
Details
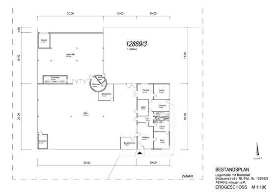
Objektbeschreibung
Attraktives Gewerbeobjekt im Herzen des etablierten Gewerbegebiets Endingen: Bürotrakt mit ca. 178 m², angrenzende Halle mit ca. 1.050 m² auf einem großzügigen Grundstück von ca. 3.580 m². Das in den 1980er Jahren errichtete Anwesen besticht durch solide Bauweise, hohe Qualität und flexible Nutzungsmöglichkeiten - ideal für...
Ausstattung
Gesamtfläche: ca. 3.580 m²
Bürotrakt mit ca. 178 m² Gesamtfläche, gut geschnittene Räume
Halle mit ca. 1.050,29 m², ideal für Produktion, Lagerung oder Logistik
Hochwertige Bauweise aus den 1970er Jahren
Flexibles Nutzungskonzept für Produktion, Handel oder Dienstleistungen
Gute Anbindung an Verkehrswege und...
Weitere Informationen
Sonstiges
Die Käuferprovision beträgt 3,57% des notariell beglaubigten Kaufpreises inkl. der gesetzlich gültigen Mehrwertsteuer.
Alle Angaben beruhen auf den Auskünften des Eigentümers. Trotz unserer Sorgfältigkeit können wir keine Haftung für die Vollständigkeit und Richtigkeit...
Anbieter der Immobilie

Online-ID: 2myle54
Referenznummer: MS-1658
Finde Angebote wie dieses
Hier geht es zu unserem Impressum, den Allgemeinen Geschäftsbedingungen, den Hinweisen zum Datenschutz und nutzungsbasierter Online-Werbung.