

Dous Immobilien GmbH
Frau Pamela Lorenz
004 ···
Nr. anzeigenPreise & Kosten
Provision für Käufer
3,57 % inkl. MwSt.
Lage
Wetzen ist ein Ortsteil der Gemeinde Oldendorf (Luhe) in Niedersachsen und liegt südlich von Lüneburg. Oldendorf (Luhe) ist eine Gemeinde im Landkreis Lüneburg in Niedersachsen und liegt herrlich eingebettet zwischen den beiden Naturparks Lüneburger Heide und dem Elbufer-Drawehn an der Luhe . Die Gemeinde liegt nah an der...
Das Haus
Kategorie
Einfamilienhaus
Baujahr
1978
Energie & Heizung
Warum sehe ich diese Anzeige? – Du siehst diese Anzeige basierend auf Ihrer Navigation auf unserer Website und den Suchkriterien, die du verwendet hast.
Energieausweistyp
Verbrauchsausweis
Gebäudetyp
Wohngebäude
Baujahr laut Energieausweis
1978
Wesentliche Energieträger
GAS
Gültigkeit
bis 06.01.2036
Effizienzklasse
D
Endenergieverbrauch
128,20 kWh/(m²·a)
Weitere Energiedaten
Haustyp
Massivhaus
Energieträger
Gas
Heizungsart
offener Kamin, Zentralheizung
Details
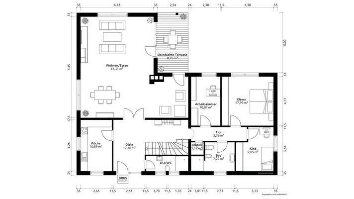
Objektbeschreibung
Dieses gepflegte Einfamilienhaus aus dem Baujahr 1978 bietet komfortables, ebenerdiges Wohnen in ruhiger Hanglage und überzeugt durch ein großzügiges Raumangebot sowie eine attraktive Ausbaureserve im Dachgeschoss. Die Immobilie befindet sich in einem guten und sehr gepflegtem Zustand und eignet sich ideal für Familien oder...
Preisinformation
2 Garagenstellplätze
Weitere Informationen
Stichworte
Nutzfläche: 121,00 m², Anzahl Terrassen: 1
Anbieter der Immobilie

Online-ID: 2mynt5z
Referenznummer: W-K-LG-25-069-P
Finde Angebote wie dieses
Hier geht es zu unserem Impressum, den Allgemeinen Geschäftsbedingungen, den Hinweisen zum Datenschutz und nutzungsbasierter Online-Werbung.