Bien-Zenker GmbH Musterhaus

Herrn Kevin Baur

Kusterdingen - Doppelhaushälfte inklusive Grundstück - individuell planbar - Bestpreisgarantie bei Bien-Zenker

€ 650.000
Kaufpreis
140 m²
Wohnfläche ca.
5
Zimmer
430 m²
Grundstücksfl. ca.

Der Anbieter dieses Objekts hat gegenüber der AVIV Germany GmbH als Betreiber dieses Online-Marktplatzes erklärt, nicht als Unternehmer im Sinne des § 1 KSchG zu handeln. Die im Verbraucherschutzrecht der Union verankerten Verbraucherrechte (insbesondere Informationspflichten und Rücktritts- bzw. Widerrufsrechte) finden auf den Vertrag zwischen dem Anbieter des Objekts und Ihnen (dem Interessenten) keine Anwendung.

Gewerblicher Anbieter

Der Anbieter dieses Objekts hat gegenüber der AVIV Germany GmbH als Betreiber dieses Online-Marktplatzes erklärt, als Unternehmer im Sinne des § 1 KSchG zu handeln.

AdresseStraße nicht freigegeben
72127 Kusterdingen 
Auf Karte ansehen

Preise & Kosten

Kaufpreis € 650.000

Provision für Käufer

Bei Abschluss eines Kaufvertrages wird eine Vermittlungs-/ Nachweisprovision in Höhe von 5,8 % inklusive 19 % Mehrwertsteuer auf den Kaufpreis des Grundstücks vom Käufer fällig.

Lage

Dieses attraktive Grundstück in Kusterdingen bietet eine hervorragende Grundlage zur Realisierung individueller Wohnprojekte. Die ebene und gut zugeschnittene Fläche ermöglicht eine vielseitige Bebauung nach den gültigen örtlichen Vorgaben. Durch die angenehme Nachbarschaft, die ruhige Lage und die gewachsene Wohnstruktur...

Mehr anzeigen

Das Haus

Kategorie

Einfamilienhaus

  • Zustand: projektiert

Details

Objektbeschreibung

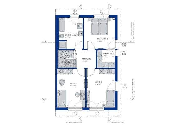
Die Häuser können im Grundriss und der Größe individuell verändert werden. Schnell sein lohnt sich!

Individuelle Architektur, inspirierendes Design und ein zeitgemäßes Raumkonzept - das EVOLUTION 130 verbindet auf einzigartige Weise Qualität und fachliches Know-how mit modernem Wohnen. Dazu gehört ganz...

Mehr anzeigen

Ausstattung

Das Haus wird in bekannter Bien-Zenker Qualität schlüsselfertig angeboten. Auf Wunsch können auch Eigenleistungen übernommen werden, um Kosten zu sparen. Das Haus kann noch individuell verändert werden.

Im Preis enthalten:

* Effizienzhaus 40 plus optional mit QNG Zertifikat
* Satteldach mit 36°...

Mehr anzeigen

Weitere Informationen

Sonstiges
Wir schätzen Ihr Interesse an unserem Grundstücksangebot und möchten darauf hinweisen, dass wir aus verschiedenen Gründen die genaue Adresse des Grundstücks erst in einem persönlichen Gespräch bekannt geben können. Dies dient sowohl Ihrem als auch unserem Schutz, um sicherzustellen, dass wir Ihre Anfrage...

Mehr anzeigen

Anbieter der Immobilie

Bien-Zenker GmbH Musterhaus

Römerstraße 157, 72793 Pfullingen

user

Herrn Kevin Baur

Dein Ansprechpartner

Anbieter-Website Anbieter-Profil Anbieter-Impressum

Online-ID: 2myr75l

Referenznummer: 12688-1630

Finde Angebote wie dieses

imageimageimage

Hier geht es zu unserem Impressum, den Allgemeinen Geschäftsbedingungen, den Hinweisen zum Datenschutz und nutzungsbasierter Online-Werbung.