Version: 8.25.2Navigation überspringen
Schwabl Immobilien
443.000 €
4 Zimmer  •  106 m²  •  6. Geschoss

Wohnung zum Kauf
443000 €
4.179 €/m²
4 Zimmer  •  106 m²  •  6. Geschoss

Großzügige Familienwohnung in erstklassiger Lage - 4 Zimmer im 6. Liftstock

Diese helle und einladende 4-Zimmer-Familienwohnung befindet sich im 6. Liftstock eines im Jahr 1998 errichteten Wohnhauses mit Wohnungseigentum aufgrund von Baurecht. Die durchdachte Raumaufteilung und der großzügige Wohn-Essbereich machen dieses Objekt zu einem idealen Zuhause für Familien oder Paare mit Platzbedarf.

Raumaufteilung & Ausstattung

. Großer Wohn-Essbereich mit viel Tageslicht
. Moderne Einbauküche
. 3 weitere Zimmer, ideal als Schlafzimmer, Kinderzimmer oder Homeoffice nutzbar
. Badezimmer und WC getrennt
. Kellerabteil für zusätzlichen Stauraum
. Garagenplätze im Haus optional erwerbbar

Die Wohnung besticht durch ihren funktionellen Grundriss, helle Räume und ein angenehmes Wohnambiente.

Inkludiert ist auch ein Kellerabteil mit 1,8 m2 und die Mitbenutzung der allgemeinen Teile wie z.B. die Waschküche inkl. Trockner, einem Kinderspielraum, einen großen Innenhof und Fahrradräumen im Haus und Hof.

Im Haus befindet sich auch eine Garage, die optional erworben werden kann. Von der Garage gelangen Sie mit dem Lift direkt zu Ihrer Wohnung im 6.Stock. Ein zweiter Garagenplatz steht Ihnen ebenso optional zur Verfügung.


Besonderheiten

. Geräumige Familienwohnung mit idealer Raumaufteilung
. Moderne Wohnqualität in urbaner Lage
. Sehr gute Verkehrsanbindung und zahlreiche Einkaufsmöglichkeiten
. Optionaler Garagenplatz direkt im Haus

Merkmale

  • Bezug: sofort
  • 6. Geschoss
  • Einbauküche
  • Personenaufzug
  • Kelleranteil
  • 2 Stellplätze: 2 Außen-Stellplätze
  • Barrierefrei
  • Bad mit Dusche

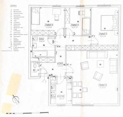
Grundrisse

Grundrisse
1 / 1

Bausubstanz und Energie

Heizwärmebedarf (HWB)

B

Gesamtenergieeffizienz (fGEE)

C
  • Baujahr1998
  • EnergieträgerFernwärme
MediumRectangleTop

Preisdetails

Kaufpreis
443000 €
4.179,25 €/m²
Provision für Käufer
3,6%
Der guten Ordnung halten wir fest, dass wir als Doppelmakler tätig sind und dass es ein Naheverhältnis zu den Verkäufern gibt.

Die Courtage in Höhe von 3% zzgl USt. Weitere Informationen siehe Provisionshinweis.
Weitere Preisinformationen
2 Stellplätze

Lage

address-icon
Ospelgasse 2-6Wien (1200)
Die Umgebung bietet eine hervorragende Infrastruktur und eine sehr gute Anbindung:

. Öffentliche Verkehrsmittel: Die Schnellbahn-Station Traisengasse ist in nur 3 Gehminuten erreichbar, ebenso die Linien 2, 12, 5A und 37A und die U6-Station Dresdner Straße ist in 7 Gehminuten erreichbar
. Freizeit & Erholung: Die Millennium City liegt nur 10 Minuten zu Fuß entfernt - ebenso das beliebte Donau- und Donauinsel-Erholungsgebiet
. Nahversorgung: Ein BILLA Plus befindet sich direkt vis-à-vis, zahlreiche weitere Geschäfte des täglichen Bedarfs liegen in unmittelbarer Nähe
. Mehrere Schulen sind in wenigen Minuten zu Fuß erreichbar - Kindergärten (z.B. Kinderfreunde), Volksschule (Europaschule), Gymnasium am Schiff, ...
. In nur 30 Minuten sind sie am Flughafen Wien

Weitere Informationen

Provisionshinweis 3,6%
Der guten Ordnung halten wir fest, dass wir als Doppelmakler tätig sind und dass es ein Naheverhältnis zu den Verkäufern gibt.

Die Courtage in Höhe von 3% zzgl USt. des Gesamtkaufpreises ist bei Vertragsabschluss fällig und vom Käufer an "Schwabl Immobilien e.U." zu zahlen. Sonstiges Alle Angaben sind ohne Gewähr und basieren ausschließlich auf Informationen, die uns von unserem Auftraggeber übermittelt wurden. Wir übernehmen keine Gewähr für die Vollständigkeit, Richtigkeit und Aktualität dieser Angaben. Zwischenverkauf bleibt vorbehalten. Grunderwerbsteuer, Kaufvertrags-, Notar- und Gerichtskosten sind vom Käufer zu tragen. Wir stehen Ihnen mit weiteren Informationen zum Objekt und zum Eigentümer zur Verfügung. Die Besichtigung kann nach Vereinbarung mit unserem Mitarbeiter/ Beauftragten erfolgen. Der Maklervertrag mit uns kommt durch schriftliche Vereinbarung oder durch die Inanspruchnahme unserer Maklertätigkeit zustande. Stichworte Nutzfläche: 106,00 m², Anzahl der Schlafzimmer: 1, Anzahl der Badezimmer: 1, Bundesland: Wien, 7 Etagen

Weitere Services

Lust auf eine Besichtigung?
Eine Frage zur Immobilie?
Nachricht hinzufügen
Mit der Nutzung der oben angegebenen Telefonnummer oder durch Klicken auf „Kontaktieren“ akzeptierst Du die Allgemeinen Nutzungsbedingungen, denen Du jederzeit widersprechen kannst. Weitere Informationen zum Datenschutz

Über den Anbieter

Klederinger Straße 69, 1100 WIEN
Gernot Schwabl
Gernot SchwablDein Kontakt
Online-ID: 25DBFS92VFZI
Referenznummer: 4623034
MediumRectangleTop
Wie zufrieden bist du mit dieser Seite (nicht mit der Immobilie selbst)?