

Volksbank Kassel Göttingen eG
Frau Nejla Fitozovic
056 ···
Nr. anzeigenPreise & Kosten
Provision für Käufer
2,975 % inkl. MwSt.
Lage
Diese charmante Immobilie besticht durch ihre erstklassige Lage, die eine hohe Lebensqualität verspricht. Sie befindet sich im Ortsteil Westuffeln der Gemeinde Calden ein Ort, der durch seine ruhige und naturnahe Umgebung begeistert und dennoch zentral gelegen ist.
Nur etwa 6 Kilometer entfernt liegt der Flughafen...
Das Haus
Kategorie
Einfamilienhaus
Baujahr
1996
Energie & Heizung
Warum sehe ich diese Anzeige? – Du siehst diese Anzeige basierend auf Ihrer Navigation auf unserer Website und den Suchkriterien, die du verwendet hast.
Energieausweistyp
Verbrauchsausweis
Gebäudetyp
Wohngebäude
Wesentliche Energieträger
Heizöl
Gültigkeit
31.10.2025 bis 30.10.2035
Effizienzklasse
D
Endenergieverbrauch
106,30 kWh/(m²·a)
Weitere Energiedaten
Haustyp
Massivhaus
Energieträger
Öl
Heizungsart
Zentralheizung
Details
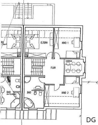
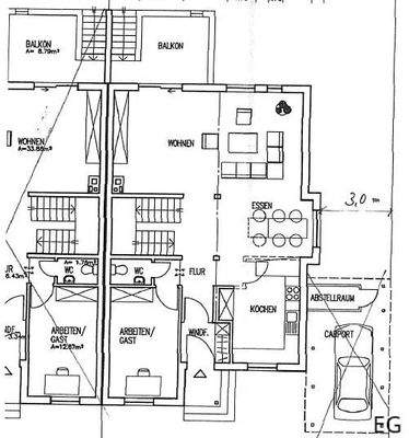
Objektbeschreibung
Diese attraktive Doppelhaushälfte überzeugt durch ihre Vielseitigkeit und ein durchdachtes Raumkonzept, das viel Raum für Ihre individuellen Wohnträume bietet.
Beim Betreten des Hauses gelangen Sie durch den einladenden Windfang in das Erdgeschoss. Linker Hand befindet sich ein gemütliches Zimmer, das sich ideal als...
Preisinformation
2 Stellplätze
Weitere Informationen
Stichworte
Stellplatz vorhanden, Nutzfläche: 38,66 m², Anzahl Balkone: 1, Bundesland: Hessen
Sonstiges/Wohnen: Einliegerwohnung
Anbieter der Immobilie
Volksbank Kassel Göttingen eG
Rudolf-Schwander-Str. 1, 34117 Kassel

Online-ID: 2mys95d
Referenznummer: 0-2084
Finde Angebote wie dieses
Hier geht es zu unserem Impressum, den Allgemeinen Geschäftsbedingungen, den Hinweisen zum Datenschutz und nutzungsbasierter Online-Werbung.