
McMakler GmbH
Ihr McMakler Team
080 ···
Nr. anzeigenPreise & Kosten
Provision für Käufer
Die Provision i.H.v. 3,57 % inkl. MwSt. ist mit Kaufvertragsbeurkundung fällig, sofern der Verkaufspreis über 83.000,00 € liegt.
Liegt der Verkaufspreis dagegen bei/unter 83. Weitere Informationen siehe Provisionshinweis.
Lage
Lage: Attraktive Lage in Rastatt mit guten Möglichkeiten für Eigennutzer oder Investoren
Bildung und Betreuung: Top-Lage: Schule und Kindergarten in max. 800 m Entfernung
Nahversorgung: Schnelle Erreichbarkeit von Anlaufstellen wie Supermarkt, Apotheke, Postfiliale und Bankfiliale
Anbindung: Nächste Bushaltestelle...
Das Renditeobjekt
Baujahr
1952
Bezug
ab sofort
Energie & Heizung
Warum sehe ich diese Anzeige? – Du siehst diese Anzeige basierend auf Ihrer Navigation auf unserer Website und den Suchkriterien, die du verwendet hast.
Energieausweistyp
Bedarfsausweis
Gebäudetyp
Wohngebäude
Baujahr laut Energieausweis
1952
Wesentliche Energieträger
Gas
Effizienzklasse
E
Endenergiebedarf
145,90 kWh/(m²·a)
Weitere Energiedaten
Energieträger
Gas
Heizungsart
Etagenheizung
Details
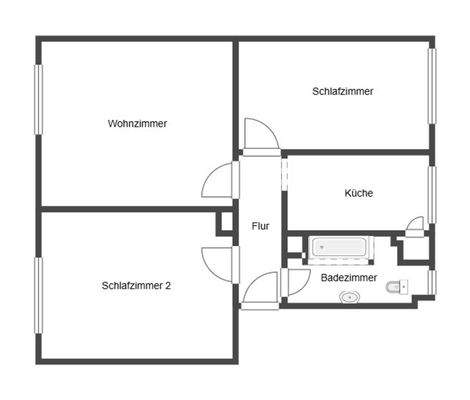
Objektbeschreibung
Objektnr: 1067653
In Rastatt, beschaulich und sicher in einer Nebenstraße, präsentiert sich diese Immobilie als ideale Wahl für sowohl Kapitalanleger als auch Eigennutzer. Durch den altersbedingt renovierungsbedürftigen Zustand bietet die Eigentumswohnung Ihnen oder Ihren Mietern viel Gestaltungsspielraum mit...
Ausstattung
+ In ruhiger Umgebung (Nebenstraße), zur Vermietung, aber auch für Selbstnutzer
+ Gestaltungsspielraum dank Renovierungsbedarf, Hausgeld: ca. 142 €
+ Einfache Ausstattung der Wohnung umfasst Jalousien
+ Stauraum und Komfort dank einer Garage, eines Kellerraums und einer Hausreinigung
Weitere Informationen
Provisionshinweis
Die Provision i.H.v. 3,57 % inkl. MwSt. ist mit Kaufvertragsbeurkundung fällig, sofern der Verkaufspreis über 83.000,00 € liegt.
Liegt der Verkaufspreis dagegen bei/unter 83.000,00 €, ist die fest vereinbarte Mindestprovision i.H.v. mind. 5.950,00 € inkl. MwSt. mit Kaufvertragsbeurkundung fällig...
Anbieter der Immobilie
McMakler GmbH
Am Postbahnhof 17, 10243 Berlin
Online-ID: 2myse5b
Referenznummer: c272e6ebf2
Finde Angebote wie dieses
Hier geht es zu unserem Impressum, den Allgemeinen Geschäftsbedingungen, den Hinweisen zum Datenschutz und nutzungsbasierter Online-Werbung.