
Lydia Ishikawa Immobilien GmbH
Frau Lydia Ishikawa
069 ···
Nr. anzeigenPreise & Kosten
Provision für Käufer
provisionsfrei
Lage
Bad Homburg ist moderner Wirtschaftsstandort, attraktive Einkaufsstadt und vor allem ein begehrter Wohnort und gilt als Zentrum der Region des Hochtaunuskreises. Bad Homburg umfasst ca. 56.000 Einwohner.
Die Stadt versteht sich als Kur- und Kongressstadt, verfügt über mehrere Wellness-Bäder, gemütliche Restaurants, Bars...
Die Wohnung
Wohnanlage
Energie & Heizung
Warum sehe ich diese Anzeige? – Du siehst diese Anzeige basierend auf Ihrer Navigation auf unserer Website und den Suchkriterien, die du verwendet hast.
Energieausweistyp
Verbrauchsausweis
Gebäudetyp
Wohngebäude
Baujahr laut Energieausweis
1989
Gültigkeit
bis 25.09.2030
Endenergieverbrauch
141,70 kWh/(m²·a) - Warmwasser enthalten
Details
Objektbeschreibung
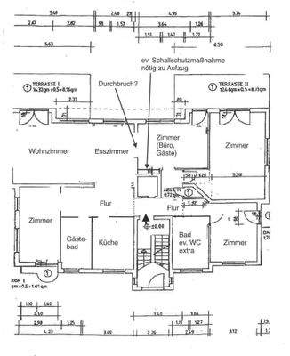
In begehrter Lage von Bad Homburg, nur einen Steinwurf vom Seedammbad entfernt, erwartet Sie eine außergewöhnliche Erdgeschoss-Einheit mit beeindruckendem Potenzial. Aktuell als Büro genutzt, bietet diese Immobilie vielfältige Nutzungsmöglichkeiten - sei es als großzügige 4- bis 5-Zimmer-Wohnung oder für alternative...
Ausstattung
- flexibel gestaltbare Fläche im EG
- über 400qm Außenfläche als Sondernutzungsrecht (Terrasse und Garten)
- zwei TG-Stellplätze
- Kellerraum
- Heizung 2019/2020 erneuert
- ruhige, gepflegte Wohneinheit mit nur vier Parteien
- die großzügige Außenfläche ist mit 41,66qm in der Flächenberechnung...
Preisinformation
2 Stellplätze, Kaufpreis je: 30.000,00 EUR
Weitere Informationen
Sonstiges
Selbstverständlich können wir auf Wunsch auch eine Video-Besichtigung mit Ihnen durchführen.
Da wir Objektangaben nicht selbst ermitteln, übernehmen wir hierfür keine Gewähr.
Unsere Courtage ist verdient und fällig bei Vertragsabschluss
Stichworte
Tiefgarage vorhanden, Anzahl der...
Anbieter der Immobilie

Lydia Ishikawa Immobilien GmbH
Zeppelinallee 25, 60325 Frankfurt
Online-ID: 2myuh5m
Referenznummer: 4fff811b8
Finde Angebote wie dieses
Hier geht es zu unserem Impressum, den Allgemeinen Geschäftsbedingungen, den Hinweisen zum Datenschutz und nutzungsbasierter Online-Werbung.