

Ku´damm Immobilien GmbH
Herr Olaf Kamrath
033 ···
Nr. anzeigenPreise & Kosten
Provision für Käufer
provisionsfrei
Lage
Neuruppin ist die Kreisstadt des Landkreises Ostprignitz-Ruppin in Brandenburg und liegt ca. 80 km nordwestlich von Berlin. Mit rund 32.000 Einwohnern ist die Stadt das wirtschaftliche, administrative und kulturelle Zentrum der Region.
Die Infrastruktur ist sehr gut ausgebaut. Einkaufsmöglichkeiten des täglichen Bedarfs...
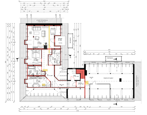
Das Renditeobjekt
Kategorie
Mehrfamilienhaus
Bezug
sofort
Energie & Heizung
Warum sehe ich diese Anzeige? – Du siehst diese Anzeige basierend auf Ihrer Navigation auf unserer Website und den Suchkriterien, die du verwendet hast.
Weitere Energiedaten
Energieträger
Fernwärme
Heizungsart
Zentralheizung
Details
Objektbeschreibung
Zum Verkauf steht ein attraktives Stadthaus in begehrter Altstadtlage von Neuruppin. Das Eckgebäude befindet sich zentral an der Friedrich-Ebert-Straße / Ecke Friedrich-Engels-Straße und profitiert von einer sehr guten Sichtbarkeit sowie einer gefragten innerstädtischen Lage.
Das Mehrfamilienhaus umfasst 7 Wohneinheiten...
Weitere Informationen
Sonstiges
Gerne laden wir Sie ein, uns bei Fragen oder Interesse direkt zu kontaktieren. Eine E-Mail, in der Sie Ihre Telefonnummer hinterlassen, oder ein Anruf genügt, um weitere Informationen zu erhalten.
Ihr Team von Ku'damm Immobilien GmbH steht Ihnen jederzeit zur Verfügung und freut sich darauf, Ihnen bei...
Anbieter der Immobilie

Online-ID: 2mywa5r
Finde Angebote wie dieses
Hier geht es zu unserem Impressum, den Allgemeinen Geschäftsbedingungen, den Hinweisen zum Datenschutz und nutzungsbasierter Online-Werbung.