
VR-Bank Ismaning Hallbergmoos Neufahrn eG
Herr Hans-Jürgen Gruber
089 ···
Nr. anzeigenPreise & Kosten
Provision für Käufer
provisionsfrei
Lage
Das Bauvorhaben befindet sich in einer attraktiven und ruhigen Wohngegend von Untermenzing, einem beliebten Stadtteil im Münchener Nord/Westen. Diese Lage bietet eine perfekte Kombination aus urbanem Lebensstil und naturnaher Umgebung.
Untermenzing zeichnet sich durch seine hervorragende Infrastruktur aus. In...
Die Wohnung
Wohnungslage
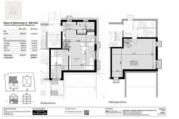
Erdgeschoss
Bezug
sofort
Wohnanlage
Energie & Heizung
Warum sehe ich diese Anzeige? – Du siehst diese Anzeige basierend auf Ihrer Navigation auf unserer Website und den Suchkriterien, die du verwendet hast.
Energieausweis: für diesen Gebäudetyp nicht notwendig
Weitere Energiedaten
Haustyp
KfW 55
Heizungsart
Fußbodenheizung, Luft-/Wasser-Wärmepumpe
Details
Objektbeschreibung
Entdecken Sie zwei hochwertige, moderne villenartige Häuser mit insgesamt acht exklusiven Eigentumswohnungen. Jede Wohnung erstreckt sich über zwei Etagen und bietet Ihnen großzügigen Wohnraum.
Die Erdgeschosswohnungen verfügen über einen Hobbyraum und einen eigenen Gartenanteil, während die Obergeschosswohnungen...
Ausstattung
* ideal für Eigenbedarf oder Kapitalanleger
* gute Abschreibungsmöglichkeiten, 5% Degressiv die ersten Jahre
* Acht Eigentumswohnungen über zwei Etagen
* zwei bis vier Zimmer Wohnungen ab 64m² bis 98m²
* Helle, zeitgemäß geschnittene Wohnungen
* Kunststofffenster mit Dreifachverglasung
* Innenfenster aus...
Preisinformation
1 Garagenstellplatz, Kaufpreis: 15.000,00 EUR
Weitere Informationen
Sonstiges
Nähere Informationen erhalten Sie auf Anfrage, unter Angabe Ihres Namens, Ihrer Adresse, E-Mail-Adresse und Telefonnummer.
Besichtigungen nach Absprache mit unserem Büro.
Sämtliche Angaben stammen vom Eigentümer. Wir haben diese nicht geprüft.
Wir haften deshalb...
Anbieter der Immobilie

VR-Bank Ismaning Hallbergmoos Neufahrn eG
Bahnhofstr. 3, 85737 Ismaning
Online-ID: 2mywf57
Referenznummer: 4395-Haus A Whg 2
Finde Angebote wie dieses
Hier geht es zu unserem Impressum, den Allgemeinen Geschäftsbedingungen, den Hinweisen zum Datenschutz und nutzungsbasierter Online-Werbung.