
David Borck Immobiliengesellschaft mbH
Katrin Bergmann
+49 ···
Nr. anzeigenPreise & Kosten
Provision für Käufer
3,57% inkl. gesetzl. MwSt.
Lage
Die Wohnadresse befindet sich in attraktiver Lage im Berliner Bezirk Spandau, unmittelbar am Pichelssee, einem Havelarm mit direktem Bezug zum Wasser. Das Umfeld ist geprägt von ruhiger Wohnbebauung, Grünflächen und einer hohen Aufenthaltsqualität entlang des Seeufers. Spazier- und Radwege sowie Wassersportangebote bieten...
Die Wohnung
Wohnungslage
Erdgeschoss
Bezug
sofort
Wohnanlage
Energie & Heizung
Warum sehe ich diese Anzeige? – Du siehst diese Anzeige basierend auf Ihrer Navigation auf unserer Website und den Suchkriterien, die du verwendet hast.
Energieausweistyp
Verbrauchsausweis
Gebäudetyp
Wohngebäude
Wesentliche Energieträger
Öl
Gültigkeit
23.07.2018 bis 22.07.2028
Effizienzklasse
F
Endenergieverbrauch
176,95 kWh/(m²·a)
Weitere Energiedaten
Energieträger
Öl
Heizungsart
Zentralheizung
Details
Objektbeschreibung
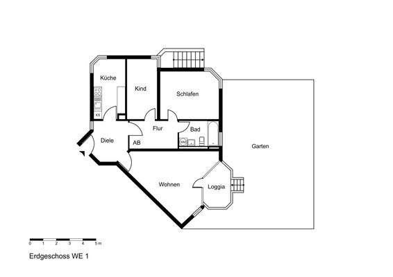
Diese bezugsfreie Eigentumswohnung liegt in einer ruhigen Wohnanlage in direkter Wasserlage am Pichelsee im Berliner Bezirk Spandau, Ortsteil Wilhelmstadt. Mit einer Wohnfläche von ca. 86 m² bietet die Wohnung eine gute Grundlage für eine individuelle Gestaltung nach eigenen Vorstellungen. Die Einheit umfasst drei gut...
Weitere Informationen
Stichworte
Tiefgarage vorhanden, Anzahl Balkone: 1, Bundesland: Berlin, Wohnungsnr.: WE01
Anbieter der Immobilie

David Borck Immobiliengesellschaft mbH
Schlüterstr. 45, 10707 Berlin
Online-ID: 2myxd5x
Referenznummer: 6254
Finde Angebote wie dieses
Hier geht es zu unserem Impressum, den Allgemeinen Geschäftsbedingungen, den Hinweisen zum Datenschutz und nutzungsbasierter Online-Werbung.