

Kreissparkasse Waiblingen
Herr Timo Beutel
071 ···
Nr. anzeigenPreise & Kosten
Provision für Käufer
4,76 % inkl. MwSt.
Lage
Korb hat zirka 11.500 Einwohner und grenzt unmittelbar an Waiblingen an. Zur Gemeinde Korb gehören die Teilorte Steinreinach und Kleinheppach.
Buslinien, die häufig verkehren, verbinden Korb mit dem Bahnhof in Waiblingen und Endersbach. Durch die nahe gelegene Bundesstraße ist Korb gut an das überregionale Straßennetz...
Das Renditeobjekt
Kategorie
Wohn- und Geschäftshaus
Baujahr
1930
Bezug
nach Absprache
Frei ab
vermietet
Energie & Heizung
Warum sehe ich diese Anzeige? – Du siehst diese Anzeige basierend auf Ihrer Navigation auf unserer Website und den Suchkriterien, die du verwendet hast.
Wärme
Strom
Energieausweistyp
Bedarfsausweis
Gebäudetyp
Nicht-Wohngebäude
Baujahr laut Energieausweis
1930
Wesentliche Energieträger
Gas
Gültigkeit
30.07.2025 bis 29.07.2035
Endenergiebedarf (Wärme)
272,00 kWh/(m²·a)
Endenergiebedarf (Strom)
15,10 kWh/(m²·a)
Weitere Energiedaten
Energieträger
Gas
Details
Objektbeschreibung
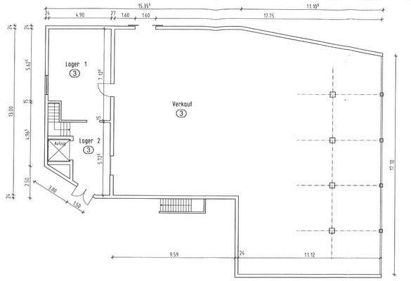
- Einzelhandelsfläche, ca. 390 m² Gesamtgewerbefläche im Erdgeschoss und
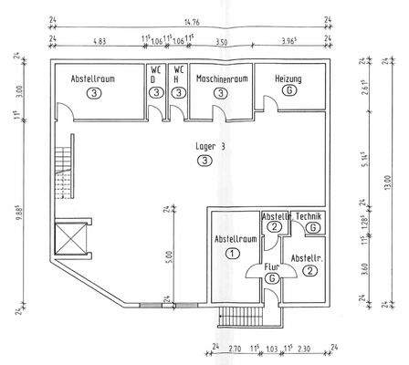
ca. 190 m² Lagerfläche im Untergeschoss, vermietet,
Mieteinnahmen derzeit ca. 41.200 Euro jährlich, MV bis 2035 fest
Zum Laden gehören 18 Außenstellplätze
- 4 Zimmer-Wohnung, ca. 101 m² Wohnfläche im 1. Obergeschoss, vermietet,
...
Preisinformation
Ist-Mieteinnahmen pro Jahr: 62.560,00 EUR
Weitere Informationen
Stichworte
Wohnfläche: 188,00 m², Nutzfläche: 190,00 m², Gesamtfläche: 768,00 m², vermietbare Fläche: 578,00 m², Bundesland: Baden-Württemberg, modernisiert
Anbieter der Immobilie

Kreissparkasse Waiblingen
Alter Postplatz 8, 71332 Waiblingen

Online-ID: 2myxh5h
Referenznummer: 4-016304 komplett
Finde Angebote wie dieses
Hier geht es zu unserem Impressum, den Allgemeinen Geschäftsbedingungen, den Hinweisen zum Datenschutz und nutzungsbasierter Online-Werbung.