
McMakler GmbH
Ihr McMakler Team
080 ···
Nr. anzeigenPreise & Kosten
Provision für Käufer
Die Provision i.H.v. 3,57 % inkl. MwSt. ist mit Kaufvertragsbeurkundung fällig, sofern der Verkaufspreis über 83.000,00 € liegt.
Liegt der Verkaufspreis dagegen bei/unter 83. Weitere Informationen siehe Provisionshinweis.
Lage
Lage: Ruhige Vorstadtlage mit guter Anbindung an die Stadtzentren und alle Einrichtungen
Bildung und Betreuung: Nur ca. 800 m zu Kindergarten und Schule - ideale Verhältnisse für Ihre Familie
Nahversorgung: Supermarkt, Apotheke, Postfiliale und Bankfiliale in unter 5 Gehminuten Entfernung
Anbindung: Gut erreichbar...
Die Wohnung
Wohnungslage
8. Geschoss
Bezug
nach Absprache
Wohnanlage
Energie & Heizung
Warum sehe ich diese Anzeige? – Du siehst diese Anzeige basierend auf Ihrer Navigation auf unserer Website und den Suchkriterien, die du verwendet hast.
Energieausweistyp
Verbrauchsausweis
Gebäudetyp
Wohngebäude
Baujahr laut Energieausweis
1974
Wesentliche Energieträger
Fernwärme
Effizienzklasse
D
Endenergieverbrauch
115,10 kWh/(m²·a)
Weitere Energiedaten
Energieträger
Fernwärme
Heizungsart
Zentralheizung
Details
Objektbeschreibung
Objektnr: 1068539
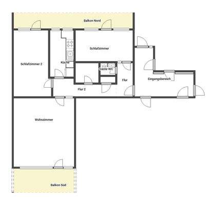
Diese attraktive 3-Zimmer-Wohnung befindet sich im 8. Obergeschoss eines sehr gepflegten Mehrfamilienhauses aus dem Jahr 1974. Das Haus ist barrierefrei zugänglich und überzeugt durch seine ruhige, grüne Umgebung. Besonders hervorzuheben ist die weitläufige Parkanlage rund um das Gebäude mit...
Ausstattung
+ Lichtdurchflutete 3-Zimmer-Wohnung im 8. Obergeschoss mit zwei Balkonen.
+ Ruhige Wohnanlage mit gepflegter Parkanlage und großem Teich.
+ Zwei Schlafzimmer mit bodentiefen Fenstern und direktem Balkonzugang.
+ Tiefgaragenstellplatz, Kellerraum und barrierefreier Zugang inklusive.
Weitere Informationen
Provisionshinweis
Die Provision i.H.v. 3,57 % inkl. MwSt. ist mit Kaufvertragsbeurkundung fällig, sofern der Verkaufspreis über 83.000,00 € liegt.
Liegt der Verkaufspreis dagegen bei/unter 83.000,00 €, ist die fest vereinbarte Mindestprovision i.H.v. mind. 5.950,00 € inkl. MwSt. mit Kaufvertragsbeurkundung fällig...
Anbieter der Immobilie
McMakler GmbH
Am Postbahnhof 17, 10243 Berlin
Online-ID: 2myzu5u
Referenznummer: bae270e00a
Finde Angebote wie dieses
Hier geht es zu unserem Impressum, den Allgemeinen Geschäftsbedingungen, den Hinweisen zum Datenschutz und nutzungsbasierter Online-Werbung.