
Werde Eigentümer GmbH
Herr Sebastian Ghesquier
+49 ···
Nr. anzeigenPreise & Kosten
Provision für Käufer
provisionsfrei
Lage
INSPIRIERENDE MENSCHEN - ENTSCHLEUNIGENDE SPREE
Angrenzend an den Charlottenburger Spreebogen und das Westfälische Viertel liegt die Rostocker Straße. Hier genießen Sie den Luxus innerhalb von drei Gehminuten wunderbar am Wasser zu entschleunigen oder mitten im "prallen Leben" zu stehen.
Der Kiez rund um die...
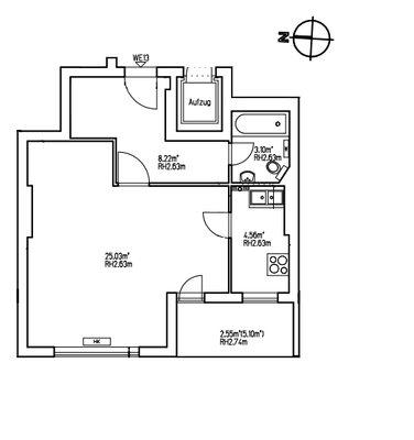
Die Wohnung
Wohnungslage
1. Geschoss
Bezug
Sofort!
Wohnanlage
Energie & Heizung
Warum sehe ich diese Anzeige? – Du siehst diese Anzeige basierend auf Ihrer Navigation auf unserer Website und den Suchkriterien, die du verwendet hast.
Energieausweistyp
Bedarfsausweis
Gebäudetyp
Wohngebäude
Wesentliche Energieträger
Fernwärme
Gültigkeit
26.08.2022 bis 25.08.2032
Effizienzklasse
D
Endenergiebedarf
123,76 kWh/(m²·a)
Weitere Energiedaten
Energieträger
Fernwärme
Details
Objektbeschreibung
ENERGETISCH ERNEUERT MIT OPTISCHEM FEINGEFÜHL
Kaufende haben bei diesem Objekt die Möglichkeit die Wohnungen in unterschiedlichen Stadien zu erwerben: wir bieten unsanierte und sanierte Einheiten an, bei allen unsanierten Einheiten gibt es die Möglichkeit, dass wir die Einheit noch sanieren oder sogar eine...
Weitere Informationen
Sonstiges
Bitte beachten Sie: dieses Objekt befindet sich in der Transformationsphase.
Alle beschriebenen Arbeiten am Gemeinschaftseigentum werden aktuell durchgeführt, oder beginnen in Kürze.
Die Baumaßnahmen sind per WEG-Beschluss abgesichert - UND IN VOLLEM UMFANG IM AUSGEWIESENEN KAUFPREIS ENTHALTEN. Die...
Anbieter der Immobilie
Werde Eigentümer GmbH
Töpferwall 2a, 17207 Röbel/Müritz
Online-ID: 2mz3d5l
Referenznummer: WE251205-06-WE13
Finde Angebote wie dieses
Hier geht es zu unserem Impressum, den Allgemeinen Geschäftsbedingungen, den Hinweisen zum Datenschutz und nutzungsbasierter Online-Werbung.