

Hartwig Kruse Immobilien GmbH
Frau Sigrid Bösch
047 ···
Nr. anzeigenPreise & Kosten
Kaution
1.134,00
Warum sehe ich diese Anzeige? – Du siehst diese Anzeige basierend auf Ihrer Navigation auf unserer Website und den Suchkriterien, die du verwendet hast.
Lage
Die Wohnung befindet sich in zentraler Lage von Freiburg im Kehdinger Land, einer landschaftlich reizvollen Region nahe der Elbe und in unmittelbarer Nähe des beliebten Elbstrandes auf Krautsand. Die Umgebung bietet ideale Voraussetzungen für Spaziergänge, Radtouren und Aktivitäten in der Natur, da mehrere Naturschutzgebiete...
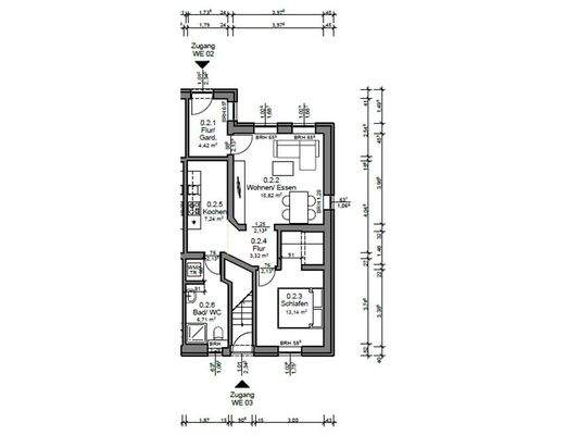
Die Wohnung
Wohnungslage
Erdgeschoss
Bezug
sofort
Wohnanlage
Energie & Heizung
Warum sehe ich diese Anzeige? – Du siehst diese Anzeige basierend auf Ihrer Navigation auf unserer Website und den Suchkriterien, die du verwendet hast.
Energieausweistyp
Bedarfsausweis
Gebäudetyp
Wohngebäude
Baujahr laut Energieausweis
1900
Wesentliche Energieträger
Öl
Gültigkeit
02.03.2025 bis 01.03.2035
Effizienzklasse
G
Endenergiebedarf
233,00 kWh/(m²·a)
Weitere Energiedaten
Energieträger
Öl
Details
Objektbeschreibung
Die Wohnung befindet sich in einem zweigeschossigen Kapitänshaus, das in massiver Bauweise um 1900 errichtet wurde und im Jahr 2025 umfassend saniert und modernisiert wurde. Das Gebäude vereint historischen Charme mit zeitgemäßer Wohnqualität.
Die angebotene Wohnung liegt im linken Bereich des Hauses und verfügt über...
Weitere Informationen
Sonstiges
Rufen Sie uns an unter der Tel.-Nr. 04770-335 oder schreiben Sie uns eine E-Mail an: info@immo-kruse.de.
Dokumente
Anbieter der Immobilie

Online-ID: 2mz3g5e
Referenznummer: 12525
Finde Angebote wie dieses
Hier geht es zu unserem Impressum, den Allgemeinen Geschäftsbedingungen, den Hinweisen zum Datenschutz und nutzungsbasierter Online-Werbung.