
ohne-makler.net - Immobilien selbst vermarkten
Privat vom Eigentümer
Kontaktiere den Anbieter schriftlich, es ist keine Telefonnummer hinterlegt.
Preise & Kosten
Provision für Käufer
provisionsfrei
Lage
Die Wissenschaftsstadt Darmstadt ist eine Stadt mit höchster "Zukunftsfähigkeit". Durch die Präsenz wissenschaftlicher Einrichtungen wird auf hohem Niveau entwickelt und produziert. Die Wirtschaft der Stadt wird durch zahlreiche namhafte und weltweit agierende Unternehmen geprägt. Zur Attraktivität trägt die geographische und...
Die Wohnung
Wohnungslage
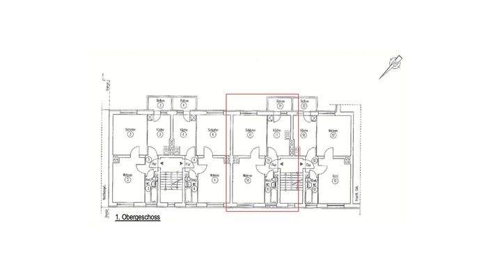
1. Geschoss
Bezug
nach Absprache
Wohnanlage
Energie & Heizung
Warum sehe ich diese Anzeige? – Du siehst diese Anzeige basierend auf Ihrer Navigation auf unserer Website und den Suchkriterien, die du verwendet hast.
Energieausweistyp
Bedarfsausweis
Gebäudetyp
Wohngebäude
Endenergiebedarf
206,00 kWh/(m²·a)
Weitere Energiedaten
Energieträger
Gas
Heizungsart
Zentralheizung
Details
Objektbeschreibung
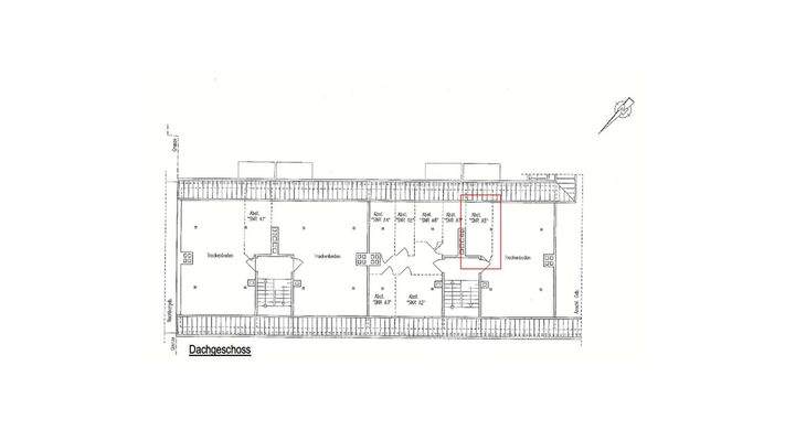
Diese helle 2-Zimmer-Wohnung mit ca. 45 m² Wohnfläche befindet sich im 1. Obergeschoss eines gepflegten Mehrfamilienhauses im beliebten Martinsviertel. Die Wohnung verfügt über ein Badezimmer und einen Balkon, der zum Entspannen einlädt. Ein Keller und ein Abstellraum im Dachgeschoss bieten zusätzlichen Stauraum.
Die...
Ausstattung
Balkon, Keller, Sonstiges (s. Text)
Bemerkungen:
In Wohn- und Schlafzimmer und im Flur gibt es einen Holzdielenboden. Die Küche und das Bad verfügen über einen Fließenboden.
Der Zustand der Wohnung ist normal und bietet Potenzial für individuelle Gestaltung.
Folgende Sanierungs- und...
Weitere Informationen
Sonstiges
Heizungsart: Zentralheizung
Energieträger: Gas
Makleranfragen nicht erwünscht. Nach § 7 UWG sind unaufgeforderte Kontaktaufnahmen durch Makler ohne ausdrückliche Einwilligung des Empfängers verboten!
ohne-makler (OM) ist weder Anbieter noch Vermittler der Immobilie. OM betreibt eine Plattform...
Anbieter der Immobilie
ohne-makler.net - Immobilien selbst vermarkten
Humboldtstr. 25 A, 21509 Glinde
Privat vom Eigentümer
Dein Ansprechpartner
Kontaktiere den Anbieter schriftlich, es ist keine Telefonnummer hinterlegt.
Online-ID: 2mz4d5j
Referenznummer: 410972
Finde Angebote wie dieses
Hier geht es zu unserem Impressum, den Allgemeinen Geschäftsbedingungen, den Hinweisen zum Datenschutz und nutzungsbasierter Online-Werbung.