

Bober Immobilien
Herrn Wolfgang F. Bober
073 ···
Nr. anzeigenPreise & Kosten
Kaution
€ 1.900
Warum sehe ich diese Anzeige? – Du siehst diese Anzeige basierend auf Ihrer Navigation auf unserer Website und den Suchkriterien, die du verwendet hast.
Lage
Ersingen ist ein charmanter Ortsteil im Stadtgebiet von Erbach im Alb-Donau-Kreis mit rund 1.200 Einwohnern.
Hier treffen ländliche Ruhe und naturnahe Umgebung auf eine solide Infrastruktur - eine seltene Kombination, die ideal für Familien, Paare sowie alle, die ein ruhiges Zuhause mit guter Anbindung suchen...
Die Wohnung
Wohnungslage
Dachgeschoss
Bezug
01.02.2026
Wohnanlage
Energie & Heizung
Warum sehe ich diese Anzeige? – Du siehst diese Anzeige basierend auf Ihrer Navigation auf unserer Website und den Suchkriterien, die du verwendet hast.
Energieausweistyp
Verbrauchsausweis
Gebäudetyp
Wohngebäude
Baujahr laut Energieausweis
1975
Wesentliche Energieträger
Öl
Gültigkeit
09.03.2024 bis 08.03.2034
Effizienzklasse
C
Endenergieverbrauch
75,70 kWh/(m²·a)
Weitere Energiedaten
Energieträger
Öl
Heizungsart
Zentralheizung
Details
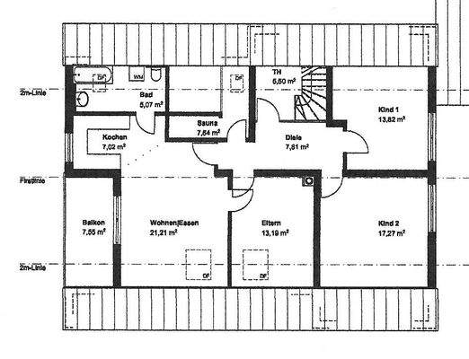
Objektbeschreibung
Im Dachgeschoss eines Zweifamilienhauses befindet sich diese großzügige 4-Zimmer-Wohnung mit Balkon und bietet Ihnen ca. 97 m² Wohnfläche, verteilt auf drei großzügige Schlafzimmer, Kinderzimmer oder Büro, ein sonniger Wohnbereich mit offener Küche und Zugang auf Ihren überdachten Balkon. Die moderne Einbauküche ist im...
Ausstattung
- 4-Zimmer-Wohnung mit Balkon, ca. 97 m² Wohnfläche
- frei ab 01.02.2026
- Kaltmiete € 950,-- inklusive Einbauküche
- Nebenkostenvorauszahlung € 300,--
- Kaution 2 Monatsmieten (€ 1.900,--)
Weitere Informationen
Sonstiges
Die im Exposé veröffentlichten von Firma Bober Immobilien ungeprüft übernommenen Unterlagen, Grundrisse, Flächenberechnungen, Objektinformationen und Angaben wurden uns vom Auftraggeber bereitgestellt und überlassen. Die Grundrisse sind nicht maßstäblich und stellen ca. Flächenangaben dar.
Die Firma Bober...
Anbieter der Immobilie
Bober Immobilien
Am Rotdamm 40, 89155 Erbach

Online-ID: 2mz635l
Referenznummer: 7078#UcWB8m
Finde Angebote wie dieses
Hier geht es zu unserem Impressum, den Allgemeinen Geschäftsbedingungen, den Hinweisen zum Datenschutz und nutzungsbasierter Online-Werbung.