Schönwald Immobilien

Herr Simon Stenger

Kontaktiere den Anbieter schriftlich, es ist keine Telefonnummer hinterlegt.

Kernsanierte Wohnung in Ludwigshafen - Kapitalanlage mit Fördervorteil & positivem Cashflow

€ 315.000
Kaufpreis
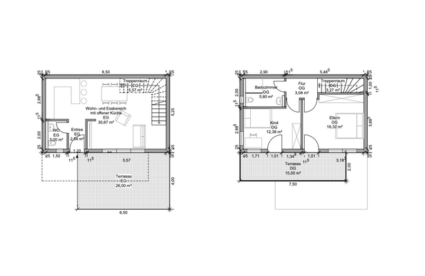
95 m²
Wohnfläche ca.
5
Zimmer

Der Anbieter dieses Objekts hat gegenüber der AVIV Germany GmbH als Betreiber dieses Online-Marktplatzes erklärt, nicht als Unternehmer im Sinne des § 1 KSchG zu handeln. Die im Verbraucherschutzrecht der Union verankerten Verbraucherrechte (insbesondere Informationspflichten und Rücktritts- bzw. Widerrufsrechte) finden auf den Vertrag zwischen dem Anbieter des Objekts und Ihnen (dem Interessenten) keine Anwendung.

Provisionsfrei
Gewerblicher Anbieter

Der Anbieter dieses Objekts hat gegenüber der AVIV Germany GmbH als Betreiber dieses Online-Marktplatzes erklärt, als Unternehmer im Sinne des § 1 KSchG zu handeln.

AdresseStraße nicht freigegeben
67063 Ludwigshafen am Rhein 
(Friesenheim/Nord)
Auf Karte ansehen

Preise & Kosten

Kaufpreis € 315.000 Preis/m² € 3.315,78

Provision für Käufer

provisionsfrei

Lage

Das Objekt liegt in zentraler Lage von Ludwigshafen am Rhein, nur wenige Minuten von der Rhein-Galerie, dem Rheinund dem öffentlichen Nahverkehr entfernt.

Ludwigshafen bildet gemeinsam mit Mannheim das wirtschaftliche Zentrum der Metropolregion Rhein-Neckar - einem der stärksten Wirtschaftsräume...

Mehr anzeigen

Die Wohnung

Kategorie

Maisonette

Bezug

nach Vereinbarung

  • Gäste-WC
  • Terrasse
  • Zustand: renoviert / saniert
  • Weitere Räume: Kelleranteil

Wohnanlage

  • Baujahr: 2025

Energie & Heizung

Weitere Energiedaten

Heizungsart

Fußbodenheizung, Luft-/Wasser-Wärmepumpe

Details

Objektbeschreibung

n der Schanzstraße 66 in Ludwigshafen entsteht ein hochwertig kernsaniertes Hinterhaus mit ca. 95 m² Wohnfläche auf zwei Etagen - modern, energieeffizient und mit maximaler Flexibilität für Kapitalanleger und Eigennutzer.

Das Gebäude wird vollständig auf Rohbaustand zurückgeführt und anschließend in Neubauqualität...

Mehr anzeigen

Ausstattung

Hochwertige Kernsanierung (Fertigstellung 2025)

KfW-70-Standard mit staatlichem Tilgungszuschuss (ca. 21.000 €)

Luft-Wärmepumpe (2025) für nachhaltige Energieversorgung

Fußbodenheizung in allen Räumen

3-fach verglaste Fenster & elektrische Verdunkelung

Moderne Bäder, neue Elektrik...

Mehr anzeigen

Weitere Informationen

Sonstiges
Alle Angaben und Informationen wurden vom Auftraggeber zur Verfügung gestellt. Eine Haftung für ihre Genauigkeit und Vollständigkeit kann daher nicht übernommen werden. Der Auftraggeber/Verkäufer behält sich das Recht auf Zwischenverkauf vor.

Wir möchten Sie darauf hinweisen, dass wir nur Anfragen mit...

Mehr anzeigen

Anbieter der Immobilie

Partner

Schönwald Immobilien

Benzstraße 35, 74211 Leingarten

user

Herr Simon Stenger

Dein Ansprechpartner

Kontaktiere den Anbieter schriftlich, es ist keine Telefonnummer hinterlegt.

Anbieter-Website Anbieter-Profil Anbieter-Impressum

Online-ID: 2mz8557

Referenznummer: 150278076#Uyzm9

Finde Angebote wie dieses

imageimageimage

Hier geht es zu unserem Impressum, den Allgemeinen Geschäftsbedingungen, den Hinweisen zum Datenschutz und nutzungsbasierter Online-Werbung.