
ohne-makler.net - Immobilien selbst vermarkten
Privat von ImmoHausBerlin GmbH Helena Shatalova
Kontaktiere den Anbieter schriftlich, es ist keine Telefonnummer hinterlegt.
Preise & Kosten
nicht in Warmmiete enthalten
Kaution
7.500,00
Warum sehe ich diese Anzeige? – Du siehst diese Anzeige basierend auf Ihrer Navigation auf unserer Website und den Suchkriterien, die du verwendet hast.
Lage
?? Lage & Verkehrsanbindung
Die Doppelhaushälfte liegt ruhig und bietet gleichzeitig eine sehr gute Anbindung an das
Berliner Stadtzentrum.
. U-Bahn Linie U5 (z. B. Elsterwerdaer Platz / Kaulsdorf-Nord) gut erreichbar
o Alexanderplatz: ca. 30-35 Minuten
o Berlin Hauptbahnhof: ca. 40-45 Minuten
. Mehrere...
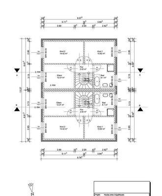
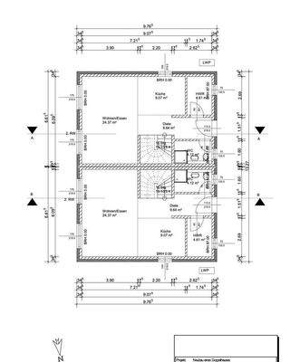
Das Haus
Kategorie
Doppelhaushälfte
Baujahr
2025
Bezug
nach Absprache
Energie & Heizung
Warum sehe ich diese Anzeige? – Du siehst diese Anzeige basierend auf Ihrer Navigation auf unserer Website und den Suchkriterien, die du verwendet hast.
Energieausweistyp
Bedarfsausweis
Gebäudetyp
Wohngebäude
Effizienzklasse
A+
Endenergiebedarf
23,00 kWh/(m²·a)
Weitere Energiedaten
Heizungsart
Fußbodenheizung, Luft-/Wasser-Wärmepumpe
Details
Objektbeschreibung
Willkommen in Ihrem neuen Zuhause! Diese hochwertige Neubau-Doppelhaushälfte bietet modernen Wohnkomfort, großzügige Räume und ein durchdachtes Wohnkonzept - ideal für Familien oder Paare mit Platzbedarf, die Wert auf Qualität, Ruhe und zeitgemäße Technik legen.
Das Haus befindet sich in einer ruhigen Straße näher...
Ausstattung
Terrasse, Garten, Vollbad, Duschbad, Einbauküche, Gäste-WC, Barrierefrei, Laminat, Fliesen
Bemerkungen:
?? Ausstattung & Highlights
. Hochwertige Massivbauweise nach gehobenem Standard
. 3-fach verglaste Fenster
. Elektrische Rollläden
. Fußbodenheizung in allen Wohnräumen
. Hochwertiger...
Preisinformation
Nettokaltmiete: 2.500,00 EUR
Weitere Informationen
Sonstiges
Heizungsart: Fußbodenheizung
Energieträger: Luft-/Wasserwärme
? Wohnen im Erstbezug
Der Erstbezug bietet ein ganz besonderes Gefühl: Alles ist neu, modern und unberührt. Sie gestalten Ihr Zuhause von Anfang an nach Ihren eigenen Vorstellungen und genießen die Sicherheit eines Neubaus mit zeitgemäßem...
Anbieter der Immobilie
ohne-makler.net - Immobilien selbst vermarkten
Humboldtstr. 25 A, 21509 Glinde
Privat von ImmoHausBerlin GmbH Helena Shatalova
Dein Ansprechpartner
Kontaktiere den Anbieter schriftlich, es ist keine Telefonnummer hinterlegt.
Online-ID: 2mz8t5v
Referenznummer: 417014
Finde Angebote wie dieses
Hier geht es zu unserem Impressum, den Allgemeinen Geschäftsbedingungen, den Hinweisen zum Datenschutz und nutzungsbasierter Online-Werbung.