

Volksbank Bad Salzuflen eG
Frau Ivone Carvalho
052 ···
Nr. anzeigenPreise & Kosten
Provision für Käufer
Keine Käuferprovision
Die Wohnung
Bezug
ca. 4. Quartal 2024
Derzeitige Nutzung
vermietet
Wohnanlage
Energie & Heizung
Warum sehe ich diese Anzeige? – Du siehst diese Anzeige basierend auf Ihrer Navigation auf unserer Website und den Suchkriterien, die du verwendet hast.
Energieausweistyp
Bedarfsausweis
Gebäudetyp
Wohngebäude
Wesentliche Energieträger
Luft/Wasser Wämepumpe
Gültigkeit
06.04.2022 bis 06.04.2032
Effizienzklasse
A+
Endenergiebedarf
10,70 kWh/(m²·a)
Details
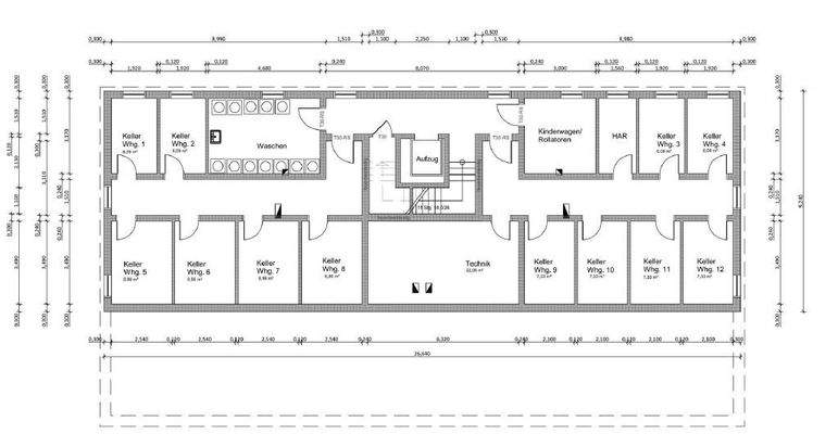
Objektbeschreibung
Im beliebten Bad Salzufler Ortsteil Werl-Aspe/Knetterheide entstehen in bester zentraler Lage 12 Neubau-Eigentumswohnungen. Diese Wohnung verfügt über eine Wohnfläche von ca. 68,22 m² und überzeugt durch hochwertige Ausstattungsmerkmale wie Dreifachverglasung, elektr. Rollläden, bodengleiche Dusche, Fußbodenheizung...
Preisinformation
Ist-Mieteinnahmen pro Jahr: 9.480,00 EUR
Weitere Informationen
Stichworte
Anzahl der Wohneinheiten: 12, Bundesland: Nordrhein-Westfalen
Anbieter der Immobilie
Volksbank Bad Salzuflen eG
Lange Straße 55, 32105 Bad Salzuflen

Online-ID: 2mzaa5d
Referenznummer: 0-1397
Finde Angebote wie dieses
Hier geht es zu unserem Impressum, den Allgemeinen Geschäftsbedingungen, den Hinweisen zum Datenschutz und nutzungsbasierter Online-Werbung.