

Leitgöb Wohnbau BAUTRÄGER GMBH
004 ···
Nr. anzeigenPreise & Kosten
Provision für Käufer
provisionsfrei
Das Haus
Energie & Heizung
Warum sehe ich diese Anzeige? – Du siehst diese Anzeige basierend auf Ihrer Navigation auf unserer Website und den Suchkriterien, die du verwendet hast.
Weitere Energiedaten
Heizungsart
Fußbodenheizung
Details
Objektbeschreibung
Wohnvergnügen für Naturgenießer in Stadtnähe
Eingebettet in eine idyllische Wohnlage zwischen Salzburg Stadt und dem Salzkammergut errichten wir in Plainfeld dieses moderne Eckreihenhaus. Die aufgelockerte Architektur mit großen Fensterfronten sorgt für lichtdurchflutete Räume, während die hochwertige...
Weitere Informationen
Stichworte
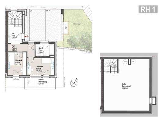
GRZ: 0, GFZ: 0, BMZ: 0, BGF: 0, Carport vorhanden, Nutzfläche: 144,56 m², Gesamtfläche: 91,35 m², Anzahl der Schlafzimmer: 3, Anzahl der Badezimmer: 2, Anzahl Balkone: 1, Balkon-Terrassen-Fläche: 19,55 m², Anzahl der Wohn-Schlafzimmer: 1, Gartenfläche: 131,79 m², Kellerfläche: 53,21 m², Wohnungsnr.: RH 1
Anbieter der Immobilie
Online-ID: 2mzaq5j
Referenznummer: 1550
Finde Angebote wie dieses
Günstige Immobilienfinanzierung einfach online berechnen
Persönliches Angebot berechnenWarum sehe ich diese Werbung? – Du siehst diese Werbung basierend auf Deiner Navigation auf unserer Website und der von Dir verwendeten Suchkriterien.
Diese Werbung wird bezahlt von durchblicker
Werbung melden
Hier geht es zu unserem Impressum, den Allgemeinen Geschäftsbedingungen, den Hinweisen zum Datenschutz und nutzungsbasierter Online-Werbung.