

Makler & Sachverständigenbüro Klinger-Vogt Immobilien
Herr Kai-Uwe Klinger-Vogt
+49 ···
Nr. anzeigenPreise & Kosten
Kaution
3.500,00
Warum sehe ich diese Anzeige? – Du siehst diese Anzeige basierend auf Ihrer Navigation auf unserer Website und den Suchkriterien, die du verwendet hast.
Lage
Die angebotene Maisonette-Wohnung befindet sich in der charmanten Gemeinde Mutterstadt, eingebettet in die idyllische Rhein-Neckar-Region. Mutterstadt zeichnet sich durch seine hervorragende Anbindung an nahegelegene Städte und sein angenehmes Wohnumfeld aus. Der Ort ist bekannt für seine vielfältige Infrastruktur, die sowohl...
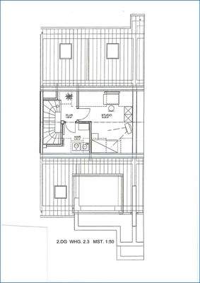
Die Wohnung
Kategorie
Maisonette
Wohnanlage
Energie & Heizung
Warum sehe ich diese Anzeige? – Du siehst diese Anzeige basierend auf Ihrer Navigation auf unserer Website und den Suchkriterien, die du verwendet hast.
Energieausweistyp
Verbrauchsausweis
Gebäudetyp
Wohngebäude
Baujahr laut Energieausweis
2008
Wesentliche Energieträger
GAS
Gültigkeit
bis 05.04.2034
Effizienzklasse
B
Endenergieverbrauch
65,10 kWh/(m²·a)
Weitere Energiedaten
Energieträger
Gas
Details
Objektbeschreibung
Kurzbeschreibung
Mietangabot Maisonettenwohnung
Objekt
Willkommen in Ihrem neuen Zuhause, einer modernen Maisonette-Wohnung in Mutterstadt.
Diese beeindruckende Wohnung, erbaut im Jahr 2008, bietet eine großzügige Wohnfläche von ca. 175 m², die Ihnen ausreichend Raum für komfortables Wohnen bietet.
Die...
Ausstattung
Diese Wohnung ist sehr hochwertig ausgestattet.
Vorhanden sind weiße Kunststofffenster mit Isolierverglasung und Rollläden, die Innentüren sind weiß, die Bodenbeläge Parkett geölt und Granitboden in den Bädern, sowie im Küchenbereich und auf der Gästetoilette. Aufwendige Elektroinstallation mit Fernsehen- und...
Preisinformation
1 Garagenstellplatz, Miete: 60,00 EUR
Weitere Informationen
Sonstiges
2 Bäder, Abstellkammer
Stichworte
Nutzfläche: 7,50 m², Anzahl der Schlafzimmer: 3, Anzahl der Badezimmer: 2, Anzahl Balkone: 2
Anbieter der Immobilie
Makler & Sachverständigenbüro Klinger-Vogt Immobilien
Torfstecherring 10, 67067 Ludwigshafen

Online-ID: 2mzbk5y
Referenznummer: A3981
Finde Angebote wie dieses
Hier geht es zu unserem Impressum, den Allgemeinen Geschäftsbedingungen, den Hinweisen zum Datenschutz und nutzungsbasierter Online-Werbung.