
McMakler GmbH
Ihr McMakler Team
080 ···
Nr. anzeigenPreise & Kosten
Provision für Käufer
Die Provision i.H.v. 3,57 % inkl. MwSt. ist mit Kaufvertragsbeurkundung fällig, sofern der Verkaufspreis über 83.000,00 € liegt.
Liegt der Verkaufspreis dagegen bei/unter 83. Weitere Informationen siehe Provisionshinweis.
Lage
Lage:
Die Wohnung liegt in der beliebten Gemeinde Unterneukirchen, umgeben von Natur und dennoch mit bester Anbindung.
Einkaufsmöglichkeiten, Kindergarten, Schulen und Freizeiteinrichtungen befinden sich in der Nähe.
Unterneukirchen bietet eine hervorragende Lebensqualität für Familien, Paare oder Berufspendler, die...
Das Renditeobjekt
Baujahr
1979
Bezug
ab sofort
Geschosse
2 Geschosse
Energie & Heizung
Warum sehe ich diese Anzeige? – Du siehst diese Anzeige basierend auf Ihrer Navigation auf unserer Website und den Suchkriterien, die du verwendet hast.
Energieausweistyp
Verbrauchsausweis
Gebäudetyp
Wohngebäude
Baujahr laut Energieausweis
1979
Wesentliche Energieträger
Öl,Pelletheizung
Effizienzklasse
D
Endenergieverbrauch
123,80 kWh/(m²·a)
Weitere Energiedaten
Energieträger
Öl, Pellets
Heizungsart
Zentralheizung
Details
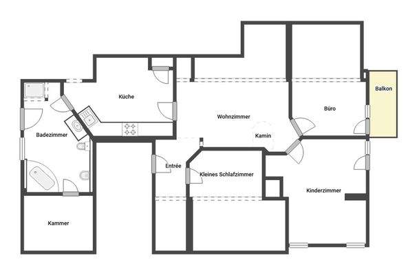
Objektbeschreibung
Objektnr: 1069071
Diese attraktive Dachgeschosswohnung befindet sich in einem gepflegten Drei-Parteien-Familienhaus in Unterneukirchen und überzeugt durch ihren durchdachten Grundriss, gemütliches Ambiente und ihre ruhige Lage.
Ursprünglich als 2-Zimmer-Wohnung konzipiert, wurde sie geschickt zu einer...
Ausstattung
+ In zentrumsnaher Umgebung, zur Vermietung, aber auch für Selbstnutzer
+ Erholung im Grünen dank eines Balkons
+ Optimal für schnellen Einzug, Hausgeld: ca. 254 €
+ Ausstattung der Wohnung umfasst eine Einbauküche, Jalousien sowie Laminatböden
+ Stauraum und Sorgenfreiheit dank eines Freistellplatzes (im Preis...
Weitere Informationen
Provisionshinweis
Die Provision i.H.v. 3,57 % inkl. MwSt. ist mit Kaufvertragsbeurkundung fällig, sofern der Verkaufspreis über 83.000,00 € liegt.
Liegt der Verkaufspreis dagegen bei/unter 83.000,00 €, ist die fest vereinbarte Mindestprovision i.H.v. mind. 5.950,00 € inkl. MwSt. mit Kaufvertragsbeurkundung fällig...
Anbieter der Immobilie
McMakler GmbH
Am Postbahnhof 17, 10243 Berlin
Online-ID: 2mzbr5f
Referenznummer: d0df177090
Finde Angebote wie dieses
Hier geht es zu unserem Impressum, den Allgemeinen Geschäftsbedingungen, den Hinweisen zum Datenschutz und nutzungsbasierter Online-Werbung.