
Vereinigte Volksbanken eG
Herr Bruno Recktenwald
004 ···
Nr. anzeigenPreise & Kosten
zzgl. Nebenkosten
Kaution
3 MKM
Provision für Mieter
1 MKM
Warum sehe ich diese Anzeige? – Du siehst diese Anzeige basierend auf Ihrer Navigation auf unserer Website und den Suchkriterien, die du verwendet hast.
Lage
Tübingen, Gewerbegebiet Untere Au an der B27 Richtung Stuttgart, in unmittelbarer Nähe zur Auffahrt/ Abfahrt Tübingen -Stuttgart.
Der Bahnhof Lustnau liegt wenige Gehminuten entfernt.
Tübingen ist eine Universitätsstadt im Zentrum Baden-Württembergs. Sie liegt am Neckar rund 30 Kilometer südlich der Landeshauptstadt...
Büro-/Praxisfläche
Kategorie
Bürofläche
Details
Objektbeschreibung
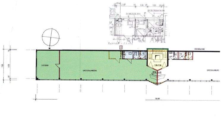
Büroflächen mit Aussicht:
Im Gewerbegebiet an der B27 Richtung Stuttgart liegen diese hellen und geräumigen Büroflächen.
Die Gesamtfläche beträgt ca.330 m² und ist hälftig teilbar, wobei jede Hälfte über einen eigenen Eingang im Treppenhaus verfügt.
Die Miete für einen Teilbreich beträgt 1500 €.
Die Büros befinden...
Weitere Informationen
Stichworte
Gesamtfläche: 330,00 m², vermietbare Fläche: 330,00 m², Anzahl der Gewerbeeinheiten: 2
Anbieter der Immobilie
Vereinigte Volksbanken eG
Friedrich-List-Platz 1, 71032 Böblingen
Online-ID: 2mzdf52
Referenznummer: 251268
Finde Angebote wie dieses
Hier geht es zu unserem Impressum, den Allgemeinen Geschäftsbedingungen, den Hinweisen zum Datenschutz und nutzungsbasierter Online-Werbung.