
ohne-makler.net - Immobilien selbst vermarkten
Privat von Wall
Kontaktiere den Anbieter schriftlich, es ist keine Telefonnummer hinterlegt.
Preise & Kosten
Provision für Käufer
provisionsfrei
Lage
Die Doppelhaushälfte liegt im Bonner Stadtteil Holzlar. Der Ortsteil Holzlar liegt nah am Naturschutzgebiet Siebengebirge gelegen. Der Wald ist in 5 Minuten erreichbar.
Einrichtungen des täglichen Bedarfs sind fußläufig erreichbar - zum Beispiel: Kindergarten, Grundschule, Bäcker, Supermärkte, Apotheke, Banken und...
Das Haus
Kategorie
Doppelhaushälfte
Baujahr
2021
Bezug
01.03.2026
Energie & Heizung
Warum sehe ich diese Anzeige? – Du siehst diese Anzeige basierend auf Ihrer Navigation auf unserer Website und den Suchkriterien, die du verwendet hast.
Energieausweistyp
Verbrauchsausweis
Gebäudetyp
Wohngebäude
Effizienzklasse
A+
Endenergieverbrauch
15,00 kWh/(m²·a)
Weitere Energiedaten
Heizungsart
Fußbodenheizung, Luft-/Wasser-Wärmepumpe, offener Kamin
Details
Objektbeschreibung
Großzügige Doppelhaushälften nach KFW-Effizienzhaus 55 Standard mit TOP-Ausstattung in grüner TOP-Lage von Bonn-Holzlar.
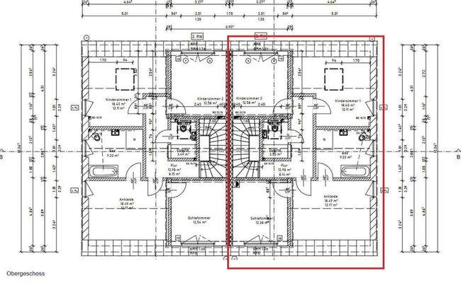
Die Doppelhaushälfte hat ca. 240 m² Wohnfläche, 432 m² Grundstück und verfügt über insgesamt 3 Geschosse, 8 schöne und helle Zimmer und 4 Badezimmer und bietet folgende gelungene Raumaufteilung...
Ausstattung
Terrasse, Garten, Keller, Vollbad, Duschbad, Sauna, Einbauküche, Kamin, Laminat
Bemerkungen:
Die hier angebotenen Doppelhaushälft verfügt über folgende bemerkenswerte Austattungsmerkmale:
- familienfreundliche und sehr ruhige Wohnlage (eine Riesenwiese vor dem Haus begehbar aus dem Garten). Auf der Wiese darf...
Preisinformation
1 Carportplatz
Weitere Informationen
Sonstiges
Heizungsart: Fußbodenheizung
Energieträger: Luft-/Wasserwärme
Achtung: Der angegebene Preis ist für eine Doppelhaushälfte.
Die andere Doppelhaushälfte steht ebenfalls zum Verkauf.
ohne-makler (OM) ist weder Anbieter noch Vermittler der Immobilie. OM betreibt eine Plattform für...
Anbieter der Immobilie
ohne-makler.net - Immobilien selbst vermarkten
Humboldtstr. 25 A, 21509 Glinde
Privat von Wall
Dein Ansprechpartner
Kontaktiere den Anbieter schriftlich, es ist keine Telefonnummer hinterlegt.
Online-ID: 2mzdh58
Referenznummer: 405473
Finde Angebote wie dieses
Hier geht es zu unserem Impressum, den Allgemeinen Geschäftsbedingungen, den Hinweisen zum Datenschutz und nutzungsbasierter Online-Werbung.