
Nürminger Immo und Konzept GmbH
098 ···
Nr. anzeigenPreise & Kosten
Provision für Käufer
provisionsfrei
Lage
Auf der Sonnenseite des Brombachsees gelegen und umrahmt von einer malerischen Hügellandschaft finden Sie die Hopfen- & Bierstadt Spalt. der Genussort zwischen Hopfen- & Kirschgärten zieht nicht nur Naturliebhaber in seinen Bann.
Die romantische Atmosphäre der Altstadtgassen, regionales Handwerk und...
Das Renditeobjekt
Kategorie
Einfamilienhaus
Baujahr
1923
Bezug
sofort
Frei ab
frei
Geschosse
2 Geschosse
Energie & Heizung
Warum sehe ich diese Anzeige? – Du siehst diese Anzeige basierend auf Ihrer Navigation auf unserer Website und den Suchkriterien, die du verwendet hast.
Weitere Energiedaten
Energieträger
Fernwärme
Details
Objektbeschreibung
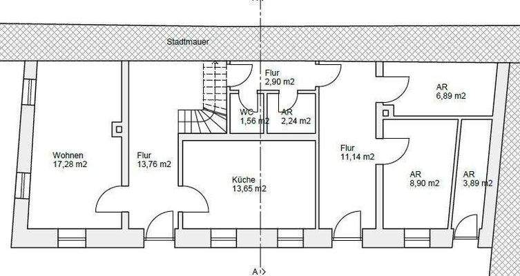
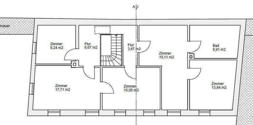
Im Erdgeschoss befindet sich bauzeittypisch der Wohnraum, die Küche, der Flur mit Treppenaufgang, WC, Speis und der Übergang zu den Hauswirtschaftsräumen mit separatem Zugang. Im Obergeschoss sind 5 Schlafräume, zum Teil als Durchgangszimmer und ein Bad angesiedelt. Das geräumige Dachgeschoss ist noch nicht ausgebaut und...
Weitere Informationen
Raumaufteilung - Projektierung
Im Rahmen einer privaten Stadtentwicklung werden in der Bierstadt Spalt insgesamt sechs Innenstadthäuser einer neuen Nutzung zugeführt und ein Neubau erstellt. Das bisher eher beengte Areal ohne Parkmöglichkeiten wird durch eine behutsame Überplanung mit Abriss unnötiger, nicht mehr genutzter...
Anbieter der Immobilie
Online-ID: 2mzdx52
Referenznummer: Hauptstr. - C
Finde Angebote wie dieses
Hier geht es zu unserem Impressum, den Allgemeinen Geschäftsbedingungen, den Hinweisen zum Datenschutz und nutzungsbasierter Online-Werbung.