

ANGERMANN Real Estate Advisory AG
Herr Felix Krug López
+49 ···
Nr. anzeigenPreise & Kosten
Provision für Mieter
provisionsfrei
Warum sehe ich diese Anzeige? – Du siehst diese Anzeige basierend auf Ihrer Navigation auf unserer Website und den Suchkriterien, die du verwendet hast.
Lage
Das Objekt befindet sich im Frankfurter Ostend. Durch die Nähe zur Innenstadt bieten der Standort Einkaufsmöglichkeiten und etliche Gastronomieangebote, die fußläufig in wenigen Minuten erreichbar sind. Der Frankfurter Flughafen ist über die Autobahnen A661 und A3 ebenso in wenigen Minuten zu erreichen. Der direkte Anschluss...
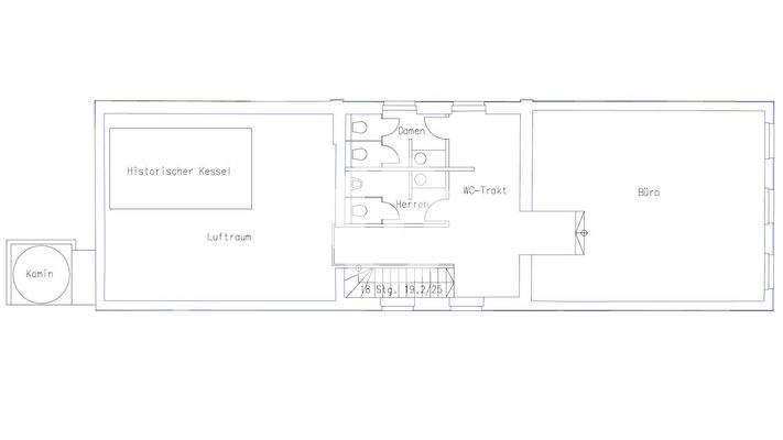
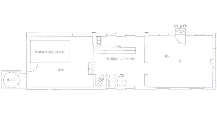
Büro-/Praxisfläche
Kategorie
Bürofläche
Baujahr
2001
Geschoss
Erdgeschoss
Details
Objektbeschreibung
Das alte Fabrikgebäude ist seit seiner Sanierung eine Kombination aus Loft und modernem Bürohaus mit ansprechender Backsteinfassade und vollverglasten Fassadenelementen. Zu dem Objekt gehören auch 2 Atelierhäuser, die im Jahr 2000 errichtet wurden. Diese enthalten eine gehobene Ausstattung. Hierzu gehört u.a. eine CAT 7...
Ausstattung
- außenliegender Sonnenschutz
- EDV-Verkabelung vorhanden
- Fenster öffenbar
- innenliegender Blendschutz
- Kabelkanäle
Weitere Informationen
Stichworte
Sonstiges: EDV-Verkabelung
Anbieter der Immobilie
ANGERMANN Real Estate Advisory AG
Guiollettstraße 48, 60325 Frankfurt

Online-ID: 2mze85c
Referenznummer: 13542@13@0
Finde Angebote wie dieses
Hier geht es zu unserem Impressum, den Allgemeinen Geschäftsbedingungen, den Hinweisen zum Datenschutz und nutzungsbasierter Online-Werbung.