
Butzke & Schroer Real Invest GmbH
Frau Andrea Nienhaus
004 ···
Nr. anzeigenPreise & Kosten
Provision für Käufer
4,76 % inkl. gesetzl. MwSt. vom Kaufpreis, fällig nach notarieller Beurkundung inkl. MwSt.
Lage
Südlohn und Oeding - gemeinsam und europaaktiv!
Unter diesem Motto präsentiert sich die Gemeinde Südlohn mit den beiden Ortsteilen Südlohn und Oeding.
Beide Ortsteile haben sich in den letzten Jahren enorm entwickelt.
In Oeding wurde im Ortsmittelpunkt ein Ärztehaus, eine Apotheke und ein...
Das Haus
Kategorie
Doppelhaushälfte
Baujahr
2026
Bezug
Nach Fertigstellung
Energie & Heizung
Warum sehe ich diese Anzeige? – Du siehst diese Anzeige basierend auf Ihrer Navigation auf unserer Website und den Suchkriterien, die du verwendet hast.
Energieausweistyp
Bedarfsausweis
Gebäudetyp
Wohngebäude
Baujahr laut Energieausweis
2026
Wesentliche Energieträger
LUFTWP
Gültigkeit
bis 01.05.2034
Effizienzklasse
A+
Endenergiebedarf
8,20 kWh/(m²·a)
Weitere Energiedaten
Heizungsart
Luft-/Wasser-Wärmepumpe
Details
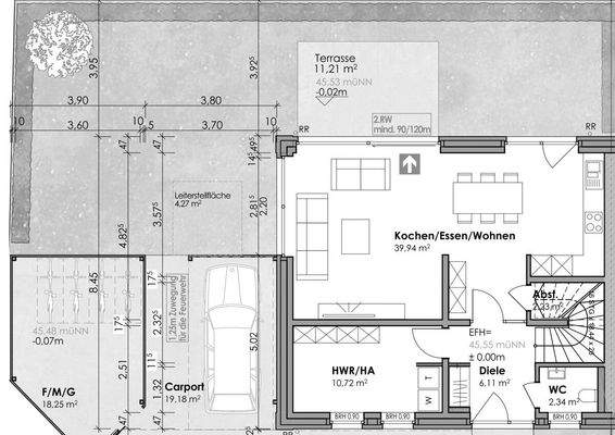
Objektbeschreibung
In einer ruhigen Wohnlage von Südlohn-Oeding entsteht aktuell eine moderne Doppelhaushälfte als Rohbau mit Dachstuhl. Der Käufer erwirbt den Rohbaukörper inklusive Dachstuhl sowie das dazugehörige Grundstück - eine hervorragende Grundlage für den weiteren eigenständigen Ausbau ganz nach Ihren individuellen...
Ausstattung
Grundstück & Baurecht
Der Kauf beinhaltet das Grundstück plus den fertiggestellten Rohbau (inklusive Dachstuhl).
Da das Objekt bereits im Rohbau steht, entfallen umfangreiche Erd- und Rohbauarbeiten - der Bauherr kann sich direkt dem Ausbau widmen und diesen nach seinen eigenen Wünschen...
Weitere Informationen
Sonstiges
Haftungsausschluss für inhaltliche Richtigkeit übermittelter Daten: Der Makler weist darauf hin, dass für die inhaltliche Richtigkeit der übermittelten Daten des oben genannten Objektes nicht gehaftet werden kann, da er diese vom Eigentümer lediglich zur Verfügung gestellt bekommen hat.
Unsere Angebote...
Anbieter der Immobilie
Butzke & Schroer Real Invest GmbH
Burloer Straße 22, 46414 Rhede
Online-ID: 2mzgk5d
Referenznummer: 2025-108
Finde Angebote wie dieses
Hier geht es zu unserem Impressum, den Allgemeinen Geschäftsbedingungen, den Hinweisen zum Datenschutz und nutzungsbasierter Online-Werbung.