
Living Blue Mallorca
971 ···
Nr. anzeigenPreise & Kosten
Provision für Käufer
Bitte beachte, das Angebot kann bei Vertragsabschluss die Zahlung einer Provision beinhalten. Weitere Informationen erhältst Du vom Anbieter.
Die Immobilie
Zu diesem Angebot wurden vom Anbieter keine weiteren Daten hinterlegt. Für weitere Informationen bitte den Anbieter kontaktieren.
Nach Informationen fragenDetails
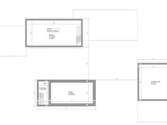
Objektbeschreibung
Dieses attraktive Grundstück befindet sich in ruhiger Lage, nur wenige Minuten nördlich von Campos. Es bietet eine ideale Umgebung für diejenigen, die die ruhige, ländliche Lebensweise schätzen und dennoch in der Nähe von städtischen Annehmlichkeiten sein möchten.
Das Grundstück verfügt bereits über eine erteilte...
Weitere Informationen
Stichworte
Bundesland: Mallorca
Anbieter der Immobilie
Online-ID: 2mzht56
Referenznummer: 6320
Finde Angebote wie dieses
Hier geht es zu unserem Impressum, den Allgemeinen Geschäftsbedingungen, den Hinweisen zum Datenschutz und nutzungsbasierter Online-Werbung.