
E + V Hamburg Immobilien GmbH
Team Engel & Völkers Hamburg Alster
+49 ···
Nr. anzeigenPreise & Kosten
Provision für Käufer
3.57 % inkl. gesetzl. MwSt. Weitere Informationen siehe Provisionshinweis.
Lage
Das Stadthaus liegt idyllisch am Alsterlauf im begehrten Stadtteil Hamburg-Alsterdorf. Diese exklusive Wohngegend besticht durch ihre ruhige Atmosphäre und die hochwertige Bebauung mit eleganten Villen und stilvollen Mehrfamilienhäusern auf großzügigen Grundstücken. Die zentrale Lage zwischen Innenstadt und Flughafen sorgt...
Die Wohnung
Kategorie
Maisonette
Wohnanlage
Energie & Heizung
Warum sehe ich diese Anzeige? – Du siehst diese Anzeige basierend auf Ihrer Navigation auf unserer Website und den Suchkriterien, die du verwendet hast.
Energieausweis: für diesen Gebäudetyp nicht notwendig
Weitere Energiedaten
Energieträger
Gas
Heizungsart
Fußbodenheizung, offener Kamin, Zentralheizung
Details
Objektbeschreibung
-Moderne Architektur und sehr gepflegter Zustand des Hauses in einer kleinen Eigentümergemeinschaft aus nur 5 Parteien
-Zwei Tiefgaragenstellplätze im Haus für je 35.000 EUR
-Malerischer, ruhiger Gemeinschaftsgarten mit eigenem Bootsanleger
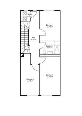
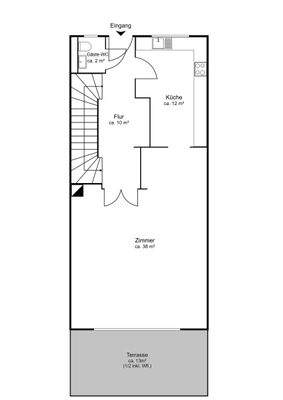
-Sechs helle, gut nutzbare Zimmer verteilen sich auf ca. 167 m²...
Preisinformation
2 Garagenstellplätze, Kaufpreis je: 35.000,00 EUR
Weitere Informationen
Provisionshinweis
3.57 % inkl. gesetzl. MwSt.
Sie sind selbst Eigentümer und möchten erfahren, wie sich der Wert Ihrer eigenen Immobilie entwickelt hat? Gerne erstellen wir für Sie eine professionelle Marktbewertung und unterstützen Sie kompetent und zuverlässig beim erfolgreichen Verkauf Ihrer Immobilie. Für weitere...
Anbieter der Immobilie
E + V Hamburg Immobilien GmbH
Stadthausbrücke 5, 20355 Hamburg
Online-ID: 2mzkg5q
Referenznummer: I-047R4Y-W-047R4Y
Finde Angebote wie dieses
Hier geht es zu unserem Impressum, den Allgemeinen Geschäftsbedingungen, den Hinweisen zum Datenschutz und nutzungsbasierter Online-Werbung.