
RUHR REAL GmbH
Herr Jonas Bruckmann
+49 ···
Nr. anzeigenPreise & Kosten
Provision für Mieter
3-4 Nettomonatsmieten zzgl. Ust.
Bei Abschluss eines Mietvertrags über die angebotenen Mietflächen mit bis zu einschließlich fünf Jahren Laufzeit ist eine Provision in Höhe von 3,0 Nettomonatsmieten; bei einer Laufzeit von bis zu einschließlich sieben
Warum sehe ich diese Anzeige? – Du siehst diese Anzeige basierend auf Ihrer Navigation auf unserer Website und den Suchkriterien, die du verwendet hast.
Lage
Die Immobilie befindet sich im Süden von Essen. Das ÖPNV-Netz ist fußläufig innerhalb kürzester Zeit zu erreichen. Die Autobahn A52, die Bundesstraßen B224 und B227 liegen nur wenige Fahrminuten entfernt. Für eine gute Visibilität ist gesorgt. Der Flughafen Düsseldorf ist in etwa 20 Fahrminuten mit dem PKW erreichbar.
Eine...
Büro-/Praxisfläche
Kategorie
Bürofläche
Bezug
nach Vereinbarung
Derzeitige Nutzung
frei
Energie & Heizung
Warum sehe ich diese Anzeige? – Du siehst diese Anzeige basierend auf Ihrer Navigation auf unserer Website und den Suchkriterien, die du verwendet hast.
Weitere Energiedaten
Energieträger
Gas
Details
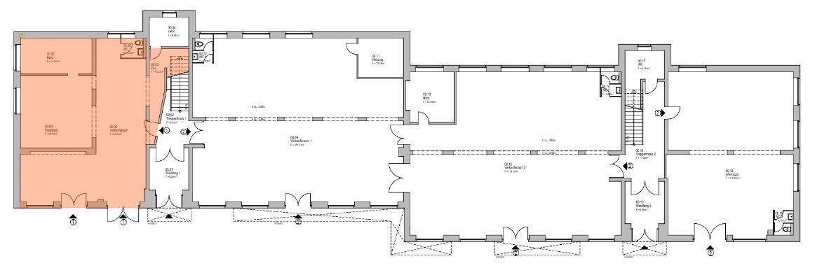
Objektbeschreibung
Die Liegenschaft bietet attraktive Mietflächen im Erd- und Obergeschoss. Im Erdgeschoss befindet sich ein einladendes Ladenlokal mit PVC-Boden in Holzoptik, während die Büroflächen im Obergeschoss mit Teppichboden, moderner Verkabelung und Deckenleuchten ausgestattet sind. Die Einheiten werden über ein Treppenhaus verbunden...
Ausstattung
. Bodenbelag: PVC-Boden in Holzoptik, Teppichboden
. Beleuchtung: Deckenleuchten
. Verkabelung: CAT/ vom Vormieter
. Verkabelungsort: Kabelkanäle
. Heizungsart: Gasheizung
Die Ausstattung kann bei Bedarf angepasst werden!
Weitere Informationen
Sonstiges
Es gelten ausschließlich unsere AGB (www.ruhr-real.de/agb). Wir möchten Sie darauf hinweisen, dass die Angaben ausschließlich auf den uns vom Eigentümer übermittelten Unterlagen und Informationen basieren. Für Richtigkeit und Vollständigkeit übernehmen wir keine Gewähr. Zwischenvermietung...
Anbieter der Immobilie

RUHR REAL GmbH
Holsterhauser Platz 2, 45147 Essen
Online-ID: 2mzle54
Referenznummer: 4625/E2
Finde Angebote wie dieses
Hier geht es zu unserem Impressum, den Allgemeinen Geschäftsbedingungen, den Hinweisen zum Datenschutz und nutzungsbasierter Online-Werbung.