

Arnold Immobilien GmbH
Frau Michaela Baeske
092 ···
Nr. anzeigenPreise & Kosten
Provision für Käufer
2,38 % inkl. der gesetzlichen MwSt. vom Kaufpreis
Lage
Wollau ist ein idyllisch gelegener Ortsteil der Stadt Pressath im Landkreis Neustadt an der Waldnaab - eingebettet in die sanfte Hügellandschaft der nördlichen Oberpfalz. Der kleine Ort zeichnet sich durch seine ruhige, naturnahe Lage aus und bietet mit einem Rodelhang am Waldrand sowie dem nahegelegenen Walderlebnispfad...
Das Haus
Kategorie
Bauernhaus
Baujahr
2006
Bezug
nach Vereinbarung
Energie & Heizung
Warum sehe ich diese Anzeige? – Du siehst diese Anzeige basierend auf Ihrer Navigation auf unserer Website und den Suchkriterien, die du verwendet hast.
Energieausweistyp
Bedarfsausweis
Gebäudetyp
Wohngebäude
Wesentliche Energieträger
Holzpellets
Gültigkeit
06.03.2025 bis 05.03.2035
Effizienzklasse
F
Endenergiebedarf
169,80 kWh/(m²·a)
Weitere Energiedaten
Energieträger
Pellets
Heizungsart
offener Kamin
Details
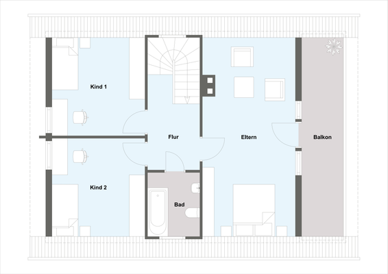
Objektbeschreibung
Dieses charmante Bauernhaus in traditioneller Blockbohlenbauweise bietet auf ca. 160?m² Wohnfläche ein wunderschönes Zuhause für Familien, Naturliebhaber oder Freiberufler mit Platzbedarf - ideal für alle, die das Besondere suchen. Hier stehen Ihnen ein Gästezimmer, ein Arbeitszimmer sowie ein großzügiges Badezimmer mit...
Ausstattung
Erdgeschoss:
- Eingangsbereich und Diele
- Gästezimmer
- Hobbyzimmer
- Alternative: Praxis oder Gewerberäume
- Bad mit Dusche, Waschbecken, Urinal, Toilette & Fenster
- Heiz- und Waschraum
Obergeschoss:
- großer, offener Wohn-, Ess- & Kochbereich mit Balkonzugang
- Einbauküche...
Preisinformation
3 Garagenstellplätze
Weitere Informationen
Sonstiges
Energieausweisdaten: V: 169,8 kWh/(m²*a), F, ZH-Holzpellets, Bj. 2006
Stichworte
Garage vorhanden, Stellplatz vorhanden, Anzahl der Schlafzimmer: 5, Anzahl der Badezimmer: 2, Anzahl Balkone: 1, Bundesland: Bayern, 3 Etagen
Anbieter der Immobilie

Online-ID: 2mzle56
Referenznummer: 448
Finde Angebote wie dieses
Hier geht es zu unserem Impressum, den Allgemeinen Geschäftsbedingungen, den Hinweisen zum Datenschutz und nutzungsbasierter Online-Werbung.