
Bauunternehmen Schmidt GmbH & Co. KG
Herr Dirk Dörjer
+49 ···
Nr. anzeigenPreise & Kosten
Provision für Käufer
Bitte beachte, das Angebot kann bei Vertragsabschluss die Zahlung einer Provision beinhalten. Weitere Informationen erhältst Du vom Anbieter.
Lage
Sickte bietet die ideale Kombination aus zentraler Lage und naturnahem Wohnen. Verkehrsgünstig im attraktiven Städtedreieck zwischen Braunschweig, Wolfsburg und Wolfenbüttel gelegen, sind alle drei Städte dank der hervorragenden Anbindung - einschließlich der A39 - schnell erreichbar.
Die Gemeinde überzeugt mit einer...
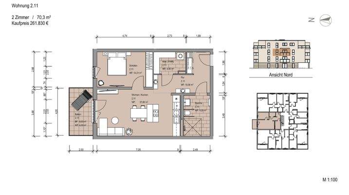
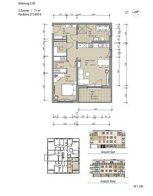
Die Wohnung
Bezug
Bauzeit circa 18 Monate
Wohnanlage
Energie & Heizung
Warum sehe ich diese Anzeige? – Du siehst diese Anzeige basierend auf Ihrer Navigation auf unserer Website und den Suchkriterien, die du verwendet hast.
Weitere Energiedaten
Heizungsart
Fußbodenheizung, Luft-/Wasser-Wärmepumpe
Details
Objektbeschreibung
In Kooperation mit der Gollmer-Bau Konzepthaus GmbH und dem Bauunternehmen Schmidt GmbH & Co. KG präsentieren wir Ihnen:
Dieses hochwertige Neubauprojekt, welches 16 Eigentumswohnungen (mit ca. 70 m2 bis 130 m²) mit 2 bis 4 Zimmern umfasst. Die zeitlose Architektur verbindet modernen Komfort mit ökologischer...
Ausstattung
Zukunftssichere Energie:
Die energieeffiziente Bauweise wird durch eine moderne Zentralheizung mit Wärmepumpe ergänzt. Genießen Sie wohlige Wärme dank Fußbodenheizung in der gesamten Wohnung. Eine PV-Anlage kann die Stromversorgung ergänzen.
Barrierefreier Komfort:
Ein Personenaufzug und der barrierefreie...
Weitere Informationen
Stichworte
Nutzfläche: 99,89 m², Anzahl Balkone: 1
Dokumente
Anbieter der Immobilie
Online-ID: 2mzlh5r
Referenznummer: N-ETW-2.OG.10-GO-520595#HNXvN
Finde Angebote wie dieses
Hier geht es zu unserem Impressum, den Allgemeinen Geschäftsbedingungen, den Hinweisen zum Datenschutz und nutzungsbasierter Online-Werbung.