

Philipp Zimmermann Immobilien GmbH & Co. KG
Herr Philipp Zimmermann
+49 ···
Nr. anzeigenPreise & Kosten
Provision für Käufer
provisionsfrei
Lage
Rathausstraße 1 - Bodman-Ludwigshafen
Diese Neubau Eigentumswohnungen entstehen in seenaher, sehr guter, zentraler und dennoch sehr ruhiger Wohnlage von "Ludwigshafen".
Das Bodenseeufer mit Promenade sowie das Strandbad sind in ca. 3 Gehminuten erreichbar.
Bodman-Ludwigshafen besteht, wie der Name schon...
Die Wohnung
Wohnungslage
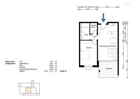
Erdgeschoss
Bezug
Frühjahr 2026
Wohnanlage
Energie & Heizung
Warum sehe ich diese Anzeige? – Du siehst diese Anzeige basierend auf Ihrer Navigation auf unserer Website und den Suchkriterien, die du verwendet hast.
Energieausweistyp
Bedarfsausweis
Gebäudetyp
Wohngebäude
Baujahr laut Energieausweis
2024
Gültigkeit
bis 13.12.2033
Effizienzklasse
A+
Endenergiebedarf
22,00 kWh/(m²·a)
Weitere Energiedaten
Energieträger
Solar
Heizungsart
Fußbodenheizung, Luft-/Wasser-Wärmepumpe, Zentralheizung
Details
Objektbeschreibung
Das Projekt mit insgesamt 15 Eigentumswohnungen wird nach den neuesten Vorgaben des GEG erstellt und bietet somit einen Top Energiestandart - Gebäudeeffizienzklasse A+.
Alle Wohnungen sind mit Fußbodenheizung ausgestattet, diese wird über eine Luft-Wärmepumpe beheizt. Eine Photovoltaikanlage produziert den eigenen Strom...
Weitere Informationen
Sonstiges
Der Endenergiebedarf des Gebäudes beträgt 22 kWh/(m² a) - Energieeffizienzklasse A+.
Gebäude nach neuester GEG 2024 mit Luft- Wärmepumpe und Photovoltaik.
Die Wohnfläche dieser Wohnung im Erdgeschoss beläuft sich auf ca. 69,89 m².
Die genaue Raumaufteilung entnehmen Sie bitte beigefügtem...
Anbieter der Immobilie
Philipp Zimmermann Immobilien GmbH & Co. KG
Leinerstraße 20, 78462 Konstanz

Online-ID: 2mzns5t
Referenznummer: E-266-3
Finde Angebote wie dieses
Hier geht es zu unserem Impressum, den Allgemeinen Geschäftsbedingungen, den Hinweisen zum Datenschutz und nutzungsbasierter Online-Werbung.