Harald Dördrechter ImmobilienConsulting

Herr Harald Dördrechter

TRAUMBÜRO IN DER PARKSTADT SCHWABING - provisionsfrei

€ 20,50
Preis/m²
847,50 m²
Bürofläche ca.
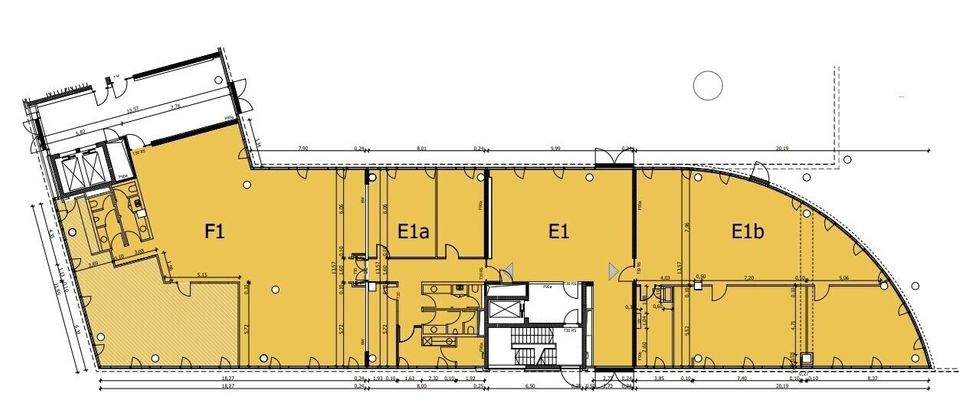
ab 362 m²
Teilbare Fläche ca.
k.A.
Zimmer

Der Anbieter dieses Objekts hat gegenüber der AVIV Germany GmbH als Betreiber dieses Online-Marktplatzes erklärt, nicht als Unternehmer im Sinne des § 1 KSchG zu handeln. Die im Verbraucherschutzrecht der Union verankerten Verbraucherrechte (insbesondere Informationspflichten und Rücktritts- bzw. Widerrufsrechte) finden auf den Vertrag zwischen dem Anbieter des Objekts und Ihnen (dem Interessenten) keine Anwendung.

Provisionsfrei
Gewerblicher Anbieter

Der Anbieter dieses Objekts hat gegenüber der AVIV Germany GmbH als Betreiber dieses Online-Marktplatzes erklärt, als Unternehmer im Sinne des § 1 KSchG zu handeln.

AdresseStraße nicht freigegeben
80807 München 
(Schwabing-Freimann)
Auf Karte ansehen

Preise & Kosten

Preis/m² € 20,50 Nebenkosten € 3,90 8 Stellplätze, je € 115

Provision für Mieter

provisionsfrei

Lage

Diverse weltweit bekannte Unternehmen haben sich wegen seiner guten Anbindung an den Flughafen und die Innenstadt für den Standort entschieden. Eine Kantine und mehrere Restaurants und Hotels sind im Umfeld vorhanden. MVV: Trambahn-Haltestelle wenige Schritte zu Fuß, U-Bahn-Haltestelle "Alte Heide" (ca. 900 m oder...

Mehr anzeigen

Büro-/Praxisfläche

Kategorie

Bürofläche

Baujahr

2002

Bezug

kurzfristig

Geschoss

Erdgeschoss

  • 8 Stellplätze: Tiefgarage

Energie & Heizung

Wärme

0 100 200 300 400 500 600 700 800 900 1000 +

Strom

0 100 200 300 400 500 600 700 800 900 1000 +

Energieausweistyp

Verbrauchsausweis

Gebäudetyp

Nicht-Wohngebäude

Wesentliche Energieträger

Fernwärme

Gültigkeit

05.11.2014 bis 05.11.2024

Endenergieverbrauch (Wärme)

53,00 kWh/(m²·a)

Endenergieverbrauch (Strom)

18,00 kWh/(m²·a)

Weitere Energiedaten

Energieträger

Fernwärme

Heizungsart

Zentralheizung

Details

Objektbeschreibung

Top-repräsentativer Neubau mit Ganzglasfassade und exklusiven Eingangsbereichen. Alle Entrees verfügen über ein Galeriegeschoss und sind mit Naturstein und zwei Aufzugsbereichen ausgestattet. TG-Stellplätze und Archivflächen sind im Untergeschoss vorhanden. Die Ausstattung der Büroflächen ist absolut hochwertig und modern...

Mehr anzeigen

Ausstattung

Die Ausstattung der Büros wird höchsten Ansprüchen gerecht und umfasst u.a. eine mieterspezifische Aufteilung, Kühldecken, bodentiefe Fenster, Hohlraumboden, außen liegenden Sonnenschutz und eingerichtete Teeküchen. Bei Bedarf lassen sich großflächige zusammenhängende Einheiten darstellen. Raumtiefe 5,50 m, Achsmass 1,38 m .

Preisinformation

8 Tiefgaragenstellplätze, Miete je: 115,00 EUR

Weitere Informationen

Sonstiges
Noch nicht die Ideallösung? Bitte kontaktieren Sie uns unter info@hdic.de oder telefonisch unter 0171 - 380 26 49 und schildern Sie uns Ihr Suchprofil. Aus über 800 Objekten in München und Umland finden wir Ihr Wunschbüro - professionell, schnell, zielführend und diskret.

Stichworte
Tiefgarage vorhanden...

Mehr anzeigen

Anbieter der Immobilie

Partner

Harald Dördrechter ImmobilienConsulting

Schluchtweg 23, 82340 Feldafing

user

Herr Harald Dördrechter

Dein Ansprechpartner

Anbieter-Website Anbieter-Profil Anbieter-Impressum

Online-ID: 2mzp95n

Referenznummer: 2251

Finde Angebote wie dieses

imageimageimage

Hier geht es zu unserem Impressum, den Allgemeinen Geschäftsbedingungen, den Hinweisen zum Datenschutz und nutzungsbasierter Online-Werbung.