

Volksbank pur Immobilien GmbH & Co. KG
Herr Lukas Häusler
072 ···
Nr. anzeigenPreise & Kosten
Provision für Käufer
3,57 % inkl. MwSt.
Käuferprovision inkl. 19 % MwSt.
Lage
Die Lage in Hochstetten bietet Familien ein ideales Umfeld, um sich wohlzufühlen und den Alltag angenehm zu gestalten.
Das Wohngebiet ist ruhig und familienfreundlich gelegen, umgeben von viel Grün und gleichzeitig bestens an die Infrastruktur angebunden.
Einkaufsmöglichkeiten für den täglichen Bedarf wie...
Das Haus
Kategorie
Einfamilienhaus
Baujahr
1950
Bezug
sofort
Energie & Heizung
Warum sehe ich diese Anzeige? – Du siehst diese Anzeige basierend auf Ihrer Navigation auf unserer Website und den Suchkriterien, die du verwendet hast.
Energieausweistyp
Bedarfsausweis
Gebäudetyp
Wohngebäude
Baujahr laut Energieausweis
1950
Wesentliche Energieträger
GAS
Gültigkeit
bis 09.10.2035
Effizienzklasse
H
Endenergiebedarf
408,60 kWh/(m²·a)
Weitere Energiedaten
Energieträger
Gas
Heizungsart
Zentralheizung
Details
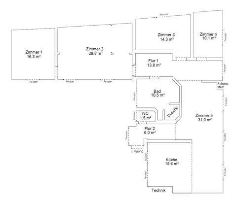
Objektbeschreibung
Dieser ansprechende Bungalow bietet auf einer Ebene ein komfortables und großzügiges Wohnerlebnis für die ganze Familie. Mit einer Wohnfläche von rund 148,9 m² und insgesamt fünf Zimmern überzeugt das frei stehende Einfamilienhaus durch seine durchdachte Raumaufteilung und sein behagliches Wohnambiente. Das klassische...
Ausstattung
- frei stehend
- 5 Zimmer
- Satteldach
- Gäste-WC mit Fenster
- Tageslichtbad mit Dusche und Wanne
- Pergola im Garten
- eigener Schopf im Garten
- Einbauküche im Preis inklusive
- uneinsichtiger Garten
- Holzfenster Doppelverglasung
- Gas-Heizung
Weitere Informationen
Sonstiges
Angaben und Haftungsvorbehalt: Alle Angaben in diesem Exposé wurden mit großer Sorgfalt zusammengestellt und auf ihre Korrektheit überprüft. Eine Haftung für Irrtümer (z. B. bei Flächen- / Maßangaben) wird dennoch ausgeschlossen. Im Exposé enthaltene Illustrationen und Fotos sind teilweise als Vorschläge...
Anbieter der Immobilie

Online-ID: 2mzru5k
Referenznummer: 107080
Finde Angebote wie dieses
Hier geht es zu unserem Impressum, den Allgemeinen Geschäftsbedingungen, den Hinweisen zum Datenschutz und nutzungsbasierter Online-Werbung.