
Römmler Immobilien GmbH
Herr Tom Römmler
017 ···
Nr. anzeigenPreise & Kosten
Provision für Käufer
3,57 %
Provision inkl. gesetzlicher MwSt.
Abschreibung/Anlage
Denkmalschutz-Afa
Lage
Radebeul gilt als eine der begehrtesten Wohnlagen im Großraum Dresden und überzeugt durch die gelungene Kombination aus hoher Lebensqualität, guter Infrastruktur und naturnaher Umgebung. Die Stadt bietet zahlreiche Einkaufsmöglichkeiten für den täglichen Bedarf, von Supermärkten über Drogerien bis hin zu charmanten...
Das Haus
Kategorie
Einfamilienhaus
Baujahr
2024
Bezug
sofort
Energie & Heizung
Warum sehe ich diese Anzeige? – Du siehst diese Anzeige basierend auf Ihrer Navigation auf unserer Website und den Suchkriterien, die du verwendet hast.
Energieausweistyp
Verbrauchsausweis
Gebäudetyp
Wohngebäude
Wesentliche Energieträger
Luftwärmepumpe
Gültigkeit
seit 09.11.2022
Endenergieverbrauch
29,00 kWh/(m²·a)
Weitere Energiedaten
Heizungsart
Fußbodenheizung, Luft-/Wasser-Wärmepumpe
Details
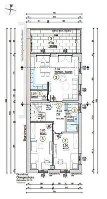
Objektbeschreibung
Diese außergewöhnliche Maisonettewohnung begeistert durch ihre weitläufige Wohnfläche von 148,62 Quadratmetern und eine Ausstattung, die hochwertigen Komfort mit zeitloser Eleganz verbindet.
Über zwei Ebenen erstreckt sich ein offenes, lichtdurchflutetes Wohnkonzept, das mit klaren Formen, edlen Materialien und einer...
Ausstattung
?? Wohnfläche & Aufteilung
+ 148,62 m² Wohnfläche (Maisonette-Stil)
+ großzügiger, offener Wohn- und Essbereich mit direktem Terrassenzugang
+ offene Wohnküche
?? Bäder
+ hochwertiges großes Bad mit Badewanne und Dusche
+ modernes Gäste WC mit bodengleicher Dusche
?? Heizung &...
Preisinformation
1 Garagenstellplatz
Weitere Informationen
Sonstiges
Rechtlicher Hinweis:
Sämtliche Objektangaben basieren auf den uns erteilten Informationen des Verkäufers. Sie wurden gewissenhaft wiedergegeben. Eine Gewähr für ihre Richtigkeit kann jedoch nicht übernommen werden. Der Empfänger kann sich nur darauf berufen, von diesem Angebot bereits vorher Kenntnis...
Anbieter der Immobilie
Römmler Immobilien GmbH
Berthelsdorfer Str. 75, 09599 Freiberg
Online-ID: 2mzsd5c
Referenznummer: 231
Finde Angebote wie dieses
Hier geht es zu unserem Impressum, den Allgemeinen Geschäftsbedingungen, den Hinweisen zum Datenschutz und nutzungsbasierter Online-Werbung.