
Debeka Bausparkasse AG
Herr Nenad Pancic
Kontaktiere den Anbieter schriftlich, es ist keine Telefonnummer hinterlegt.
Preise & Kosten
Provision für Käufer
3,57% inkl. MwSt.
Lage
Die Eigentumswohnung liegt direkt am Heideviertel der Landeshauptstadt Hannover.
Der begehrte Stadtteil bietet viele Möglichkeiten. Alles für den täglichen Bedarf ist innerhalb von max. zehn Minuten zu Fuß zu erreichen. Banken, Bäcker, Drogerien, Ärzte, Apotheken, Krankenhaus, Kindergarten und eine Schule befinden sich vor...
Die Wohnung
Wohnungslage
Erdgeschoss
Bezug
Sofort
Wohnanlage
Energie & Heizung
Warum sehe ich diese Anzeige? – Du siehst diese Anzeige basierend auf Ihrer Navigation auf unserer Website und den Suchkriterien, die du verwendet hast.
Energieausweistyp
Verbrauchsausweis
Gebäudetyp
Wohngebäude
Gültigkeit
16.10.2018 bis 16.10.2028
Effizienzklasse
D
Endenergieverbrauch
107,00 kWh/(m²·a)
Weitere Energiedaten
Energieträger
Fernwärme
Details
Objektbeschreibung
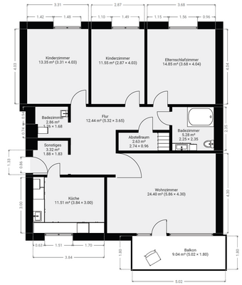
Die 4-Zimmer-Eigentumswohnung aus dem Jahr 1970 befindet sich direkt am Heideviertel in Hannover. Die Fenster wurden 2001 erneuert. Die Heizung wurde 2015 ausgetauscht. Beide Bäder sind saniert worden: das Gäste-WC umfangreich 2018 und das Hauptbadezimmer 2001. Eine Wohnfläche von ca. 104 m² im bietet Platz für die ganze...
Weitere Informationen
Sonstiges
Die genannten Informationen beruhen auf den Angaben des Verkäufers. Für die Richtigkeit und Vollständigkeit der Angaben wird keine Gewähr oder Haftung übernommen.
Seit dem 25. Mai 2018 gilt in Deutschland die EU-Datenschutz-Grundverordnung (DS-GVO). Sie regelt, wie private Unternehmen und öffentliche...
Anbieter der Immobilie

Debeka Bausparkasse AG
Debeka-Platz 2, 56073 Koblenz
Herr Nenad Pancic
Dein Ansprechpartner
Kontaktiere den Anbieter schriftlich, es ist keine Telefonnummer hinterlegt.
Online-ID: 2mzur5z
Referenznummer: 1009254#4Fd7ty
Finde Angebote wie dieses
Hier geht es zu unserem Impressum, den Allgemeinen Geschäftsbedingungen, den Hinweisen zum Datenschutz und nutzungsbasierter Online-Werbung.