

Schmidt & Bethge Immobilien Vertriebs GmbH
Herr Wladimir Zimmermann
+49 ···
Nr. anzeigenPreise & Kosten
in Warmmiete enthalten
Kaution
933,00 3 Monatsmieten
Provision für Mieter
Provisionsfrei für den Mieter inkl. MwSt.
Warum sehe ich diese Anzeige? – Du siehst diese Anzeige basierend auf Ihrer Navigation auf unserer Website und den Suchkriterien, die du verwendet hast.
Lage
Das Bürohaus ist ein Teil der Fleetkontore des Hamburger Stadtteils Hamm. Die Eiffestraße liegt in einer sehr verkehrsgünstigen Lage und ist hoch frequentiert. Anschlussstellen zur BAB wie die A1, A7, A14 und A25 aber auch die Hamburger Innenstadt sind in nur wenigen Minuten zu erreichen.
Die Anbindung an das öffentliche...
Büro-/Praxisfläche
Kategorie
Bürofläche
Baujahr
1974
Bezug
nach Absprache
Geschoss
2. Geschoss
Energie & Heizung
Warum sehe ich diese Anzeige? – Du siehst diese Anzeige basierend auf Ihrer Navigation auf unserer Website und den Suchkriterien, die du verwendet hast.
Wärme
Energieausweistyp
Verbrauchsausweis
Gebäudetyp
Nicht-Wohngebäude
Baujahr laut Energieausweis
1974
Wesentliche Energieträger
FERN
Gültigkeit
bis 29.11.2028
Endenergieverbrauch (Wärme)
78,40 kWh/(m²·a)
Weitere Energiedaten
Heizungsart
Zentralheizung
Details
Objektbeschreibung
Das markante Bürogebäude befindet sich zwischen der Eiffestraße und dem Mittelkanal und ist als funktionales und flächenökonomisches Kontor-Haus mit guter Sichtbarkeit im Jahre 1974 erstellt worden. Die einzelnen Etagen sind über einen Personenaufzug erschlossen. Die Tiefgarage lässt sich über einen hauseigenen Zugang...
Ausstattung
Das Objekt verfügt über:
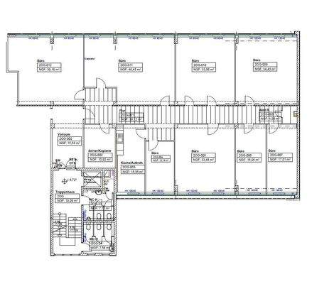
* Einen Raum mit ca. 17 m²
* Vinyldesignboden
* CAT-7 Verkabelung
* Helles und geräumiges Treppenhaus
* Herren- und Damen-WC´s
* Gemeinschaftsküche
* Gemeinschaftsserverraum
* Fahrstuhl
Preisinformation
Die Preise verstehen sich zzgl. MwSt., 1 Tiefgaragenstellplatz, Miete: 60,00 EUR
Weitere Informationen
Sonstiges
In der Betriebskostenvorauszahlung sind neben den üblichen Position wie z. B. Müllgebühr, Treppenhausreinigung, Gebäudeversicherung usw. auch eine Strom- und Wasserpauschale enthalten.
Jährlich erfolgt eine genaue Abrechnung der Betriebs- und Heizkosten.
Internet-und Telefonkosten sind darin nicht...
Anbieter der Immobilie

Online-ID: 2mzv95b
Referenznummer: EFS598-2OGREk
Finde Angebote wie dieses
Hier geht es zu unserem Impressum, den Allgemeinen Geschäftsbedingungen, den Hinweisen zum Datenschutz und nutzungsbasierter Online-Werbung.