
Blackert & Borchers Immobilien GmbH & Co KG
Frau Bettina Blackert
+49 ···
Nr. anzeigenPreise & Kosten
Provision für Käufer
Die Courtage beträgt 3,57% auf den Kaufpreis
Lage
Tating: nur wenige Autominuten zwischen St. Peter-Ording und Garding an der Nordseeküste Schleswig-Holstein liegt die beschauliche, zum Verweilen einladende Gemeinde Tating.
Das idyllische Dorf ist eine der ältesten Siedlungen auf der Halbinsel Eiderstedt. Umgeben von einzigartiger Natur, nah an der deutschen Nordseeküste...
Das Haus
Kategorie
Villa
Baujahr
1981
Energie & Heizung
Warum sehe ich diese Anzeige? – Du siehst diese Anzeige basierend auf Ihrer Navigation auf unserer Website und den Suchkriterien, die du verwendet hast.
Energieausweistyp
Bedarfsausweis
Gebäudetyp
Wohngebäude
Baujahr laut Energieausweis
2022
Wesentliche Energieträger
Gas
Gültigkeit
08.12.2022 bis 08.12.2032
Effizienzklasse
D
Endenergiebedarf
109,30 kWh/(m²·a)
Weitere Energiedaten
Energieträger
Gas
Details
Objektbeschreibung
Sie lieben den Norden, die Nordsee?
Sie benötigen auch im Urlaub oder Zweitwohnsitz richtig viel Platz? Es darf auch gerne etwas großzügiger oder repräsentativer sein? Sie möchten Geschäftsfreunden in diskreter und dennoch repräsentativer Umgebung treffen? Sie möchten einziehen, ohne noch aufwendig zu sanieren?
Sie...
Ausstattung
Daten und Fakten
Grundstück mit altem Baumbestand: Linde, Eiche, Ahorn
2 Flurstücke 8997 m² Gebäude-und Freifläche, Landwirtschaftliche Fläche, Wasserfläche sowie 2098 m² Waldfläche, Wasserfläche
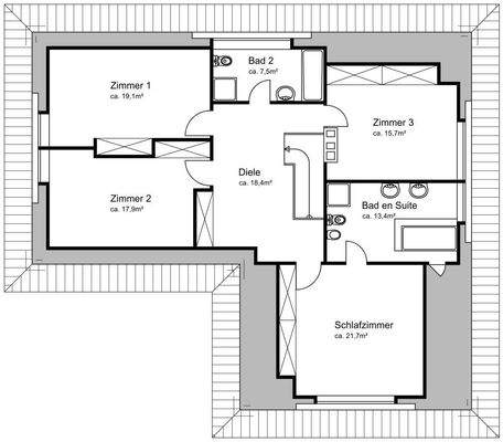
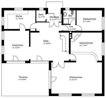
Wohnfläche: 258 m²
Nutzfläche: 156m²
Baujahr 1981
Heizung von 2022 fortlaufend gepflegt und...
Weitere Informationen
Sonstiges
Ein kleiner Hinweis:
Sämtliche Angaben wurden uns von Eigentümerseite übergeben, wir können hierzu keine Haftung übernehmen. Den Energiebedarfsausweis sowie ergänzende Unterlagen legen wir gerne bei der Besichtigung vor.
Vom Käufer zu tragen: Grunderwerbsteuer in Höhe von derzeit 6,5 % sowie...
Anbieter der Immobilie
Blackert & Borchers Immobilien GmbH & Co KG
Neuer Höltigbaum 5-7, 22143 Hamburg
Online-ID: 2mzvf58
Referenznummer: 178
Finde Angebote wie dieses
Hier geht es zu unserem Impressum, den Allgemeinen Geschäftsbedingungen, den Hinweisen zum Datenschutz und nutzungsbasierter Online-Werbung.