
CBRE GmbH
Herrn Severin Brochhaus
+49 ···
Nr. anzeigenPreise & Kosten
Provision für Mieter
provisionsfrei
Warum sehe ich diese Anzeige? – Du siehst diese Anzeige basierend auf Ihrer Navigation auf unserer Website und den Suchkriterien, die du verwendet hast.
Lage
Die Büromarktzone Porz / Flughafen erstreckt sich von der A 4 südlich entlang den Autobahnen A 559 und A 59 südlich bis zur Stadtgrenze. Sie umfasst das gesamte Porzer Stadtgebiet und die Gewerbegebiete Westhoven, Gremberghoven, Wahn und den Flughafen Köln-Bonn. Traditionell haben sich hier Logistikunternehmen und...
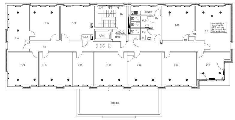
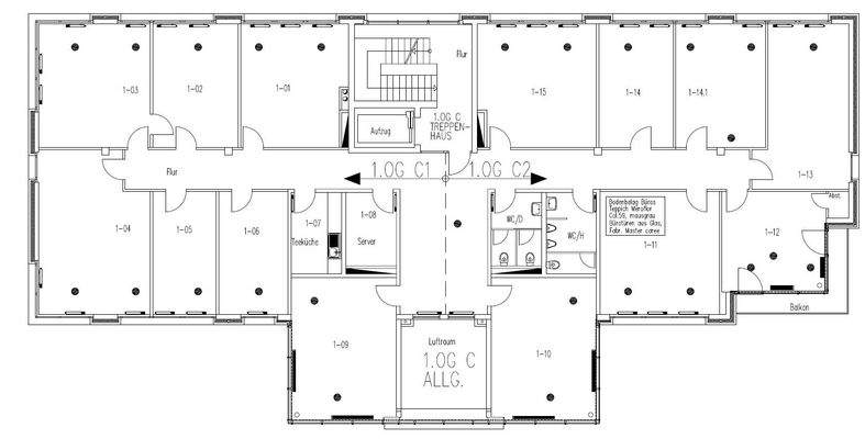
Büro-/Praxisfläche
Kategorie
Bürofläche
Baujahr
2002
Bezug
kurzfristig
Geschoss
Erdgeschoss
Energie & Heizung
Warum sehe ich diese Anzeige? – Du siehst diese Anzeige basierend auf Ihrer Navigation auf unserer Website und den Suchkriterien, die du verwendet hast.
Wärme
Strom
Energieausweistyp
Verbrauchsausweis
Gebäudetyp
Nicht-Wohngebäude
Wesentliche Energieträger
GAS
Gültigkeit
seit 05.02.2025
Endenergieverbrauch (Wärme)
84,00 kWh/(m²·a)
Endenergieverbrauch (Strom)
10,00 kWh/(m²·a)
Details
Ausstattung
BELÜFTUNG/KLIMATISIERUNG
öffenbare Fenster
SONNENSCHUTZ
außenliegender, elektrischer Sonnenschutz
EDV-VERKABELUNG
CAT-7-Verkabelung, Hohlraum-/Doppelboden
BODENBELAG
Natursteinboden, Teppichboden/-fliesen
WANDSYSTEME/TÜREN
Gipskartonwände
DECKE
abgehängte Akustikdecke...
Weitere Informationen
Stichworte
Gesamtfläche: 896,00 m²
Sonstiges: EDV-Verkabelung
Anbieter der Immobilie
CBRE GmbH
Hohenzollernring 72, 50672 Köln
Online-ID: 2mzx65k
Referenznummer: 65866@13@0@232225
Finde Angebote wie dieses
Hier geht es zu unserem Impressum, den Allgemeinen Geschäftsbedingungen, den Hinweisen zum Datenschutz und nutzungsbasierter Online-Werbung.