

Engel & Völkers - Elmshorn
Frau Janne Bugtrup
041 ···
Nr. anzeigenPreise & Kosten
Provision für Käufer
3.57 % inkl. gesetzl. MwSt.
Lage
Glückstadt liegt im Südwesten Schleswig-Holsteins direkt an der Elbe und besticht durch seine historische Altstadt mit charmanten Gassen und beeindruckenden Gebäuden. Die Stadt wurde 1617 vom dänischen König Christian IV. gegründet und ist bis heute für ihren einzigartigen, sternförmigen Grundriss bekannt, der die geplante...
Das Haus
Baujahr
1900
Energie & Heizung
Warum sehe ich diese Anzeige? – Du siehst diese Anzeige basierend auf Ihrer Navigation auf unserer Website und den Suchkriterien, die du verwendet hast.
Energieausweistyp
Bedarfsausweis
Gebäudetyp
Wohngebäude
Baujahr laut Energieausweis
1900
Wesentliche Energieträger
Gas
Gültigkeit
12.09.2025 bis 11.09.2035
Effizienzklasse
H
Endenergiebedarf
369,10 kWh/(m²·a)
Weitere Energiedaten
Energieträger
Gas
Details
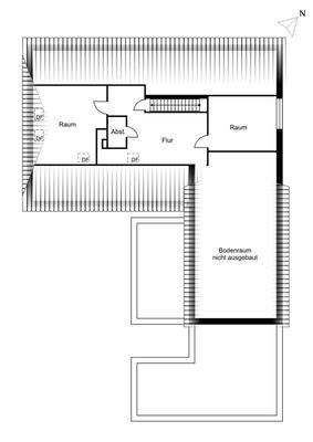
Objektbeschreibung
Auf einer großzügigen Grundstücksfläche von ca. 1.557 m² bietet sich hier eine seltene Gelegenheit für Bauherren, Projektentwickler oder Investoren: Ein vielseitig nutzbares Grundstück mit Altbestand in attraktiver Lage, das sowohl eine umfassende Sanierung des bestehenden Gebäudes als auch einen Abriss mit anschließendem...
Weitere Informationen
Sonstiges
Der Makler-Vertrag mit uns und/oder unserem Beauftragten kommt durch schriftliche Vereinbarung oder durch die Inanspruchnahme unserer Maklertätigkeit auf der Basis des Objekt-Exposés und seiner Bedingungen zustande. Die Käufercourtage in Höhe von 3,57 % auf den Kaufpreis einschließlich gesetzlicher Umsatzsteuer...
Anbieter der Immobilie

Online-ID: 2mzxy5x
Referenznummer: W-0465TF-1
Finde Angebote wie dieses
Hier geht es zu unserem Impressum, den Allgemeinen Geschäftsbedingungen, den Hinweisen zum Datenschutz und nutzungsbasierter Online-Werbung.