
Aller Weser Immobilien GmbH & Co.KG
Herr Wilken Dankleff
017 ···
Nr. anzeigenPreise & Kosten
Provision für Käufer
5,95% inkl. MwSt.
Lage
Das Mehrfamilienhaus befindet sich in einer ruhigen, gewachsenen Wohnlage im beliebten Flecken Langwedel im Landkreis Verden. Die Umgebung zeichnet sich durch eine angenehme Mischung aus Ein- und Mehrfamilienhäusern, gepflegten Gärten und viel Grün aus. Trotz der ruhigen Lage sind sämtliche Einrichtungen des täglichen Bedarfs...
Das Haus
Kategorie
Mehrfamilienhaus
Baujahr
2017
Energie & Heizung
Warum sehe ich diese Anzeige? – Du siehst diese Anzeige basierend auf Ihrer Navigation auf unserer Website und den Suchkriterien, die du verwendet hast.
Energieausweistyp
Bedarfsausweis
Gebäudetyp
Wohngebäude
Wesentliche Energieträger
GAS
Gültigkeit
bis 08.11.2025
Effizienzklasse
A
Endenergiebedarf
30,35 kWh/(m²·a)
Weitere Energiedaten
Haustyp
Massivhaus
Energieträger
Gas, Solar
Details
Objektbeschreibung
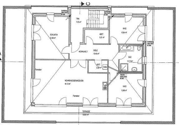
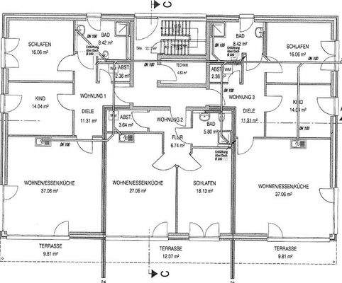
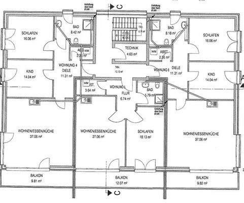
Dieses gepflegte Mehrfamilienhaus aus dem Jahr 2017 befindet sich in ruhiger Wohnlage von Langwedel-Daverden und überzeugt durch moderne Architektur, energieeffiziente Bauweise und eine durchdachte Grundrissgestaltung. Das Gebäude umfasst insgesamt sieben Wohneinheiten auf drei Etagen - Erd-, Ober- und Penthausgeschoss - und...
Ausstattung
+ 3-geschossiges Mehrfamilienhaus mit insgesamt 7 Wohneinheiten
+ Teilung nach Wohnungseigentumsgesetz (WEG)
+ Wohnflächen zwischen ca. 66 m² und 155 m²
+ Helle, freundliche Räume mit großen Fensterflächen
+ Personenaufzug mit direkter Anbindung an das Obergeschoss und Penthouse
+ Offene...
Preisinformation
Ist-Mieteinnahmen pro Jahr: 84.000,00 EUR
Weitere Informationen
Sonstiges
Die Aller Weser Immobilien GmbH & Co.KG hat sich auf den Verkauf und die Vermietung von hochwertigen Immobilien spezialisiert. Seit Jahren sind wir erfolgreich am Immobilienmarkt tätig. Wir verkaufen und vermieten exklusive und außergewöhnliche Objekte in den bevorzugten Lagen von Achim, Verden, Bremen &...
Anbieter der Immobilie
Aller Weser Immobilien GmbH & Co.KG
Bahnhofstrasse 52, 28832 Achim
Online-ID: 2mzys5j
Referenznummer: WDRG731
Finde Angebote wie dieses
Hier geht es zu unserem Impressum, den Allgemeinen Geschäftsbedingungen, den Hinweisen zum Datenschutz und nutzungsbasierter Online-Werbung.