

accurata Hausverwaltung Leipzig GmbH
Herrn Jens-Uwe Hofstaedt
034 ···
Nr. anzeigenPreise & Kosten
Kaution
1.770,00
Warum sehe ich diese Anzeige? – Du siehst diese Anzeige basierend auf Ihrer Navigation auf unserer Website und den Suchkriterien, die du verwendet hast.
Lage
im Herzen von Schönefeld, in unmittelbarer Nähe zum Abtnaundorfer Park und dem Mariannenpark.
Straßenbahn-Halt in ca. 200 m, Spielplatz, Kindergarten, Schulen,
Einkaufsmöglichkeiten sind fußläufig erreichbar
Die Wohnung
Wohnungslage
Erdgeschoss
Bezug
sofort
Derzeitige Nutzung
frei
Wohnanlage
Energie & Heizung
Warum sehe ich diese Anzeige? – Du siehst diese Anzeige basierend auf Ihrer Navigation auf unserer Website und den Suchkriterien, die du verwendet hast.
Energieausweis: für diesen Gebäudetyp nicht notwendig
Weitere Energiedaten
Energieträger
Gas
Heizungsart
Zentralheizung
Details
Objektbeschreibung
Objektbeschreibung
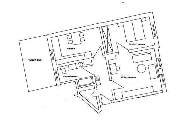
Diese wunderschöne und lichtdurchflutete 2-Zimmer-Wohnung liegt in einem gepflegten Mehrfamilienhaus in Leipzig Schönefeld.
Die Wohnung verfügt über ein großzügiges Wohnzimmer, ein kleines gemütliches Schlafzimmer, eine Küche mit ausreichend Platz sowie dem Zugang zur hofseitigen Terrasse und...
Weitere Informationen
Besichtigungstermine
nach Vereinbarung
sonstiges - Haftungsausschluss
Die in diesem Exposé angegebenen Wohn- und
Nutzflächen sowie die Informationen zum Objekt
beruhen auf keinem eigenen Aufmass, sondern auf
Angaben Dritter. Für die Richtigkeit der Angaben
übernehmen wir keine Gewähr und sichern...
Anbieter der Immobilie
accurata Hausverwaltung Leipzig GmbH
Waldstraße 35, 04105 Leipzig

Online-ID: 2n2hu52
Referenznummer: LA1919aWE05
Finde Angebote wie dieses
Hier geht es zu unserem Impressum, den Allgemeinen Geschäftsbedingungen, den Hinweisen zum Datenschutz und nutzungsbasierter Online-Werbung.