
J&P Immobilien
Frau Desireé Städter
004 ···
Nr. anzeigenPreise & Kosten
Provision für Käufer
3,57% inkl. Mehrwertsteuer pro Partei inkl. MwSt.
Hiermit möchten wir auf die Tätigkeit des Maklers unsererseits hinweisen, welche eine Provisionszahlung von Ihnen in Höhe von 3,57% inkl. ges. MwSt. beinhaltet.
Lage
Die Wohnung befindet sich in einer der begehrten Wohnlagen im Berliner Bezirk Pankow, direkt an der Grenze zu Prenzlauer Berg. Die Umgebung vereint die Ruhe eines gewachsenen Wohnviertels mit der urbanen Lebendigkeit der angrenzenden Kieze. Kleine Cafés, Wochenmärkte, Restaurants und individuelle Geschäfte prägen das...
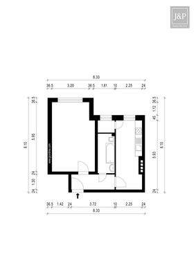
Die Wohnung
Wohnungslage
1. Geschoss
Wohnanlage
Energie & Heizung
Warum sehe ich diese Anzeige? – Du siehst diese Anzeige basierend auf Ihrer Navigation auf unserer Website und den Suchkriterien, die du verwendet hast.
Energieausweistyp
Verbrauchsausweis
Gebäudetyp
Wohngebäude
Baujahr laut Energieausweis
1992
Wesentliche Energieträger
FERN
Gültigkeit
bis 22.12.2030
Effizienzklasse
E
Endenergieverbrauch
136,00 kWh/(m²·a)
Weitere Energiedaten
Energieträger
Fernwärme, Gas
Details
Objektbeschreibung
Suchen Sie ein helles Zuhause in einer ruhigen und gepflegten Wohnlage mit klassischem Berliner Charme?
Oder interessieren Sie sich als Kapitalanleger für eine solide Immobilie in einer der gefragtesten Lagen Berlins?
Dann ist diese bezugsfreie 1-Zimmer-Wohnung in Berlin-Pankow genau das Richtige für Sie!
Die im...
Ausstattung
Alle Highlights auf einen Blick:
+ Sofort bezugsfrei - ideal für Eigennutzer oder Kapitalanleger
+ 1. Obergeschoss eines ansprechenden Mehrfamilienhauses
+ Helle, gut geschnittene Räume mit praktischer Raumaufteilung
+ Separate Wohnküche
+ Praktische Speise- bzw. Besenkammer mit zusätzlichem Stauraum
+...
Weitere Informationen
Sonstiges
HAFTUNG: Wir weisen darauf hin, dass die von uns weitergegebenen Objektinformationen, Unterlagen, Pläne etc. ausschließlich auf Informationen basieren, die uns vom Verkäufer zur Verfügung gestellt wurden. Wir übernehmen keine Gewähr für die Vollständigkeit, Richtigkeit und Aktualität dieser Angaben. Alle...
Anbieter der Immobilie
J&P Immobilien
Grabenstraße 20, 65795 Hattersheim
Online-ID: 2n2ll53
Referenznummer: 513
Finde Angebote wie dieses
Hier geht es zu unserem Impressum, den Allgemeinen Geschäftsbedingungen, den Hinweisen zum Datenschutz und nutzungsbasierter Online-Werbung.