

Immobilien Gesellschaft mbH der Frankfurter Volksbank Rhein/Main
Frau Janina Geis
061 ···
Nr. anzeigenPreise & Kosten
Provision für Käufer
3,57% inkl. MwSt.
Wir haben einen provisionspflichtigen Maklervertrag mit dem Verkäufer in gleicher Höhe abgeschlossen.
Lage
Wörth am Main liegt idyllisch eingebettet zwischen den sanften Hügeln des Odenwaldes und dem romantischen Flusslauf des Mains im unterfränkischen Landkreis Miltenberg. Die Kleinstadt mit ihrem charmanten, historischen Stadtkern überzeugt durch ihre attraktive Mischung aus naturnahem Wohnen, guter Infrastruktur und hoher...
Die Wohnung
Wohnungslage
Erdgeschoss
Wohnanlage
Energie & Heizung
Warum sehe ich diese Anzeige? – Du siehst diese Anzeige basierend auf Ihrer Navigation auf unserer Website und den Suchkriterien, die du verwendet hast.
Energieausweistyp
Verbrauchsausweis
Gebäudetyp
Wohngebäude
Baujahr laut Energieausweis
1993
Wesentliche Energieträger
ERDGAS_LEICHT
Gültigkeit
bis 25.02.2028
Effizienzklasse
D
Endenergieverbrauch
102,40 kWh/(m²·a)
Weitere Energiedaten
Energieträger
Gas
Heizungsart
Etagenheizung
Details
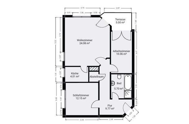
Objektbeschreibung
Diese gepflegte 3-Zimmer-Wohnung befindet sich im Erdgeschoss eines ruhig gelegenen Mehrfamilienhauses mit insgesamt 10 Wohneinheiten in attraktiver Lage von Wörth am Main. Die Wohnung ist aktuell vermietet und erzielt eine monatliche Kaltmiete von 435,-?€. Sie eignet sich somit ideal als Kapitalanlage mit solidem...
Preisinformation
1 Garagenstellplatz
Weitere Informationen
Sonstiges
Gerne stehen wir Ihnen für ein Beratungs- und Besichtigungstermin zur Verfügung.
Sie möchten selbst eine Immobilie verkaufen?
Wir ermitteln einen seriösen und marktgerechten Wert Ihrer Immobilie. Mit einem individuell für Sie abgestimmten Vermarktungsplan optimieren wir die Verkaufschancen. Als...
Anbieter der Immobilie
Immobilien Gesellschaft mbH der Frankfurter Volksbank Rhein/Main
Seligenstädter Str. 52, 63179 Obertshausen

Online-ID: 2n2m656
Referenznummer: 12149
Finde Angebote wie dieses
Hier geht es zu unserem Impressum, den Allgemeinen Geschäftsbedingungen, den Hinweisen zum Datenschutz und nutzungsbasierter Online-Werbung.