
Brinkmeier & Liebelt GmbH & Co. KG
Frau Maren Brinkmeier
+49 ···
Nr. anzeigenPreise & Kosten
Provision für Käufer
Die zu zahlende Maklerprovision beträgt für den Käufer 2,975 % inkl. der gesetzlichen MwSt. auf den Kaufpreis, verdient und zahlbar bei Vertragsabschluss.
Lage
. grüne Ortslage in einem beliebten und gefragten Wohngebiet von Schwarzenbek
. die Umgebung ist geprägt von ansprechender Nachbarschaftsbebauung mit gutem sozialem Umfeld
. die Stadt bietet ihren ca. 17.000 Einwohnern eine hervorragende Infrastruktur mit attraktiven Boutiquen, Restaurants, Supermärkten und allen...
Das Haus
Kategorie
Mehrfamilienhaus
Baujahr
1996
Bezug
sofort oder nach Vereinbarung
Energie & Heizung
Warum sehe ich diese Anzeige? – Du siehst diese Anzeige basierend auf Ihrer Navigation auf unserer Website und den Suchkriterien, die du verwendet hast.
Energieausweistyp
Verbrauchsausweis
Gebäudetyp
Wohngebäude
Baujahr laut Energieausweis
1996
Wesentliche Energieträger
Öl
Gültigkeit
seit 30.05.2025
Effizienzklasse
C
Endenergieverbrauch
93,00 kWh/(m²·a) - Warmwasser enthalten
Weitere Energiedaten
Energieträger
Öl, Solar
Heizungsart
offener Kamin, Zentralheizung
Details
Objektbeschreibung
. massiv konventionelle Bauweise
. eingeschossig mit voll ausgebautem Dachgeschoss und teilweise ausgebautem Spitzboden
. klassisches Satteldach mit roter Ton- Pfanneneindeckung und zwei großen Gauben
. Dachrinnen und Fallrohre wertig aus Kupfer
. ansprechend rote Klinkerfassade
. hochwertige Holzfenster mit...
Ausstattung
Geschmackvoller Hauseingang, passend zum Stil des Hauses gewählt - er ist gegliedert in ein großes Treppenhaus mit Zugang den Wohneinheiten im Erd-/ und Dachgeschoss sowie in den Vollkeller
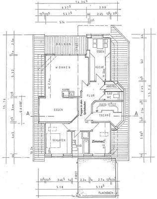
Erdgeschoss
. großer Flur als Empfangsbereich mit praktischer Garderobenmöglichkeit
. der Wohnbereich ist...
Weitere Informationen
Provision
Die zu zahlende Maklerprovision beträgt für den Käufer 2,975 % inkl. der gesetzlichen MwSt. auf den Kaufpreis, verdient und zahlbar bei Vertragsabschluss.
Sonstiges
Dieses attraktive und große Zweifamilienhaus befindet sich in einer ruhigen Seitenstraße von Schwarzenbek. Es besticht durch seinen klar...
Anbieter der Immobilie
Brinkmeier & Liebelt GmbH & Co. KG
Lauenburger Str. 10, 21493 Schwarzenbek
Online-ID: 2n2y65d
Referenznummer: 1523
Finde Angebote wie dieses
Hier geht es zu unserem Impressum, den Allgemeinen Geschäftsbedingungen, den Hinweisen zum Datenschutz und nutzungsbasierter Online-Werbung.