
KIB Kaiserstühler Immobilienbüro
Herr A Luther
015 ···
Nr. anzeigenPreise & Kosten
Provision für Käufer
3,57% inkl. 19 % MwSt vom beurkundeten Kaufpreis, vom Käufer zu zahlen
Lage
Direkte Zentrumslage
Das Renditeobjekt
Baujahr
2014
Energie & Heizung
Warum sehe ich diese Anzeige? – Du siehst diese Anzeige basierend auf Ihrer Navigation auf unserer Website und den Suchkriterien, die du verwendet hast.
Weitere Energiedaten
Energieträger
Gas
Details
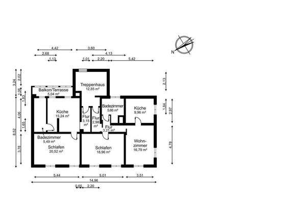
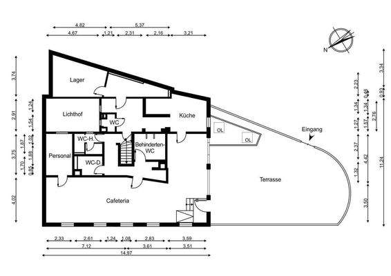
Objektbeschreibung
Triberg Zentrum. 2014 renoviertes Haus mit 2 Geschäftseinheiten, eine davon mit Wohnmöglichkeit; 4 gutplazierte Ferienwohnungen nebenan, gesonderter Eingang.
Mieteinnahmen netto pro Jahr 77.000 €
Energieausweis im angehängten Dokument
Ausstattung
Im EG befindet sich ein Bistro mit Spielautomatenbereich, Raucherbereich. Im Sommer Außenbewirtschaftung. Im OG befindet sich ein Eiscafé mit rückwärtiger großer Terrasse für die Außenbewirtschaftung.
Die 4 Ferienwohnungen und die Wohnmöglickeit für das Eiscafé liegen im angerenzenden Gebäude, 2 FeWo im EG, 2 im OG, plus...
Dokumente
Anbieter der Immobilie
KIB Kaiserstühler Immobilienbüro
Kapellenhöfe 3, 79346 Endingen
Online-ID: 2n35452
Referenznummer: 1817R2
Finde Angebote wie dieses
Hier geht es zu unserem Impressum, den Allgemeinen Geschäftsbedingungen, den Hinweisen zum Datenschutz und nutzungsbasierter Online-Werbung.