

Immobiliengesellschaft der Westerwald Bank mbH
Frau Bettina Dietershagen
+49 ···
Nr. anzeigenPreise & Kosten
Provision für Käufer
2,38 % inkl. MwSt.
Lage
Mittelhof ist eine Ortsgemeinde im Landkreis Altenkirchen in Rheinland-Pfalz. Sie gehört der Verbandsgemeinde Wissen an und ist seit 1973 ein staatlich anerkannter Fremdenverkehrsort. Die Gemeinde liegt zwischen Betzdorf (rd. 15 km Entfernung) und Wissen (rd. 5 km Entfernung).
Mittelhof selbst liegt etwa 90 km...
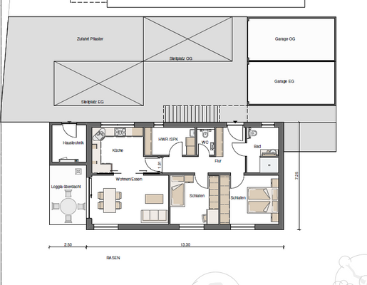
Die Wohnung
Wohnungslage
Erdgeschoss
Wohnanlage
Energie & Heizung
Warum sehe ich diese Anzeige? – Du siehst diese Anzeige basierend auf Ihrer Navigation auf unserer Website und den Suchkriterien, die du verwendet hast.
Energieausweis: für diesen Gebäudetyp nicht notwendig
Weitere Energiedaten
Energieträger
Elektro
Haustyp
KfW 55
Details
Objektbeschreibung
In beliebter Wohn- und Aussichtslage von Mittelhof mit herrlichem Blick in Wald und Wiesen entstehen in naher Zukunft 2026 zwei ansprechende Eigentumswohnungen mit einer hochwertigen Ausstattung, welche sich aufgrund von Größe/Raumaufteilung ideal für Paare, Senioren oder den kleinen Personenhaushalt eignen!
Die...
Ausstattung
Massivbauweise, Außenwände aus Porenbeton (36,5cm), verputzt und gestrichen, tragende sowie nicht tragende Innenwände ebenfalls in Porenbeton, Geschossdecken als Filigrandeckenelemente aus Stahlbeton, Flachdach inkl. Gefälledämmung, dreifachverglaste Kunststofffenster, elektrisch angetriebene Aluminium-Rollläden, Haustüre mit...
Weitere Informationen
Stichworte
Garage vorhanden, Stellplatz vorhanden, Bundesland: Rheinland-Pfalz
Anbieter der Immobilie

Online-ID: 2n3fw56
Referenznummer: 2 105 2-1
Finde Angebote wie dieses
Hier geht es zu unserem Impressum, den Allgemeinen Geschäftsbedingungen, den Hinweisen zum Datenschutz und nutzungsbasierter Online-Werbung.